$3,500,000
For Sale
- ft²
4 rooms
2 beds
2 baths
Condop
- Central Park South
Resale
This home has been saved by 9 users.
Listing by Brown Harris Stevens, Real Estate Principal Office, 445 Park Avenue, New York, NY 10022
Maintenance fees
$4,288/mo
Estimated payment
$22,100/mo
Taxes
Included in maintenance fees
Tax abatement
No info
About
Seller’s agent
description
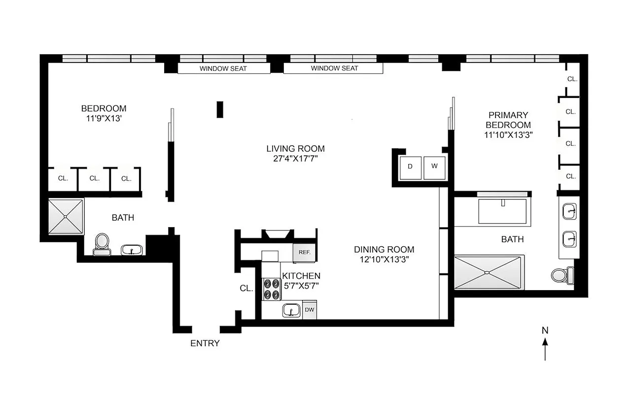
This exceptional home, a seamless blend of apartments 6B and 6C, directly overlooks Central Park from an expanse of approximately 50 feet of single pane windows looking north over Central Park. This uninterrupted Central Park frontage offers sweeping views of Central Park from every room. Thoughtfully renovated, the home features two bedrooms and two bathrooms across approximately 1,300 square feet of beautifully proportioned living space.
Policies
Pets allowed
Cats and dogs allowed
Home features
Fireplace
Decorative
View
Park
Washer/dryer
Building amenities
Services and facilities
Doorman
Full-time
Elevator
Wellness and recreation
No info on wellness and recreation
Shared outdoor space
No info on shared outdoor space
About the building
230 Central Park South
230 Central Park South, New York, NY 10019
45 units
17 stories
1937 built
For sale
3 available units for saleFor rent
2 available units for rentDocuments and permits
View documents and permitsProperty history
- Price Change: No changes
- Days on market: 22 days
| Date | Price | Event |
|---|---|---|
4/6/2026 | $3,500,000 | Listed by Brown Harris Stevens |
Sign in to take a closer look at how this home compares to similar homes.
Explore Central Park South
Transit
| Location | Distance |
|---|---|
ABCD1at 59th St–Columbus Circle | under 500 feet |
NRWat 57th St–7th Av | 0.1 miles |
Fat 57th St | 0.26 miles |
BDEat 7th Av | 0.28 miles |
NRat 59th St | 0.37 miles |







































































































































