3,360 ft²
$3,497 per ft²
2 rooms
Studio
0 baths
Two-family home
- West Village
recorded sale
Sold on 1/15/2016
Verified by closing records
Last listed for $12,000,000
Seller's agents
This home has been saved by 32 users.
Listing by Douglas Elliman, Limited Liability Broker, 111 5th Avenue, New York, NY 10003 | Brokerage Listing ID: 2235796
Common charges
Not applicable
Estimated payment
$61,737/mo
Legal disclaimerAll calculations are estimates provided by StreetEasy for informational purposes only. Actual amounts or financing terms may vary. Please contact your mortgage provider for specifics.Taxes
$2,628/mo
Tax abatement
No info
About
Seller’s agent
Buyer’s agent
description
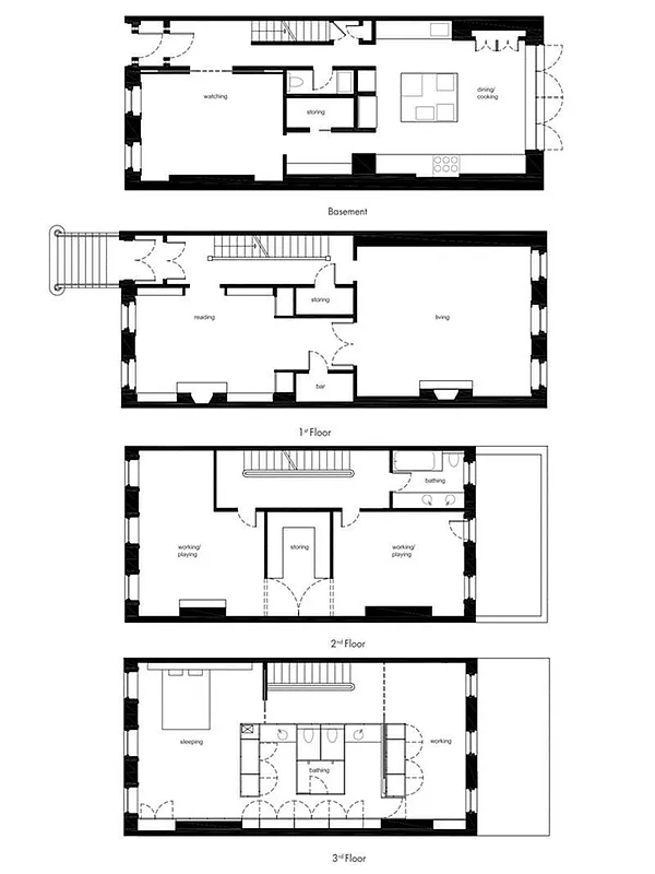
Built in 1844 as part of one of the finest rows of late Greek Revival houses in the West Village, and retaining its grand stoop with original Iron fretwork and front gate, 231 West 11th Street is a four story single family townhouse of exceptional beauty. The pear and cherry trees that line the block form a canopy of white and pink in the Spring that leave one breathless, and give a warm glow in Autumn as well.
Policies
Sorry, policy info isn’t available right now. Check back later.
Home features
Fireplace
Private outdoor space
Garden
Building amenities
Services and facilities
Storage space
Wellness and recreation
No info on wellness and recreation
Shared outdoor space
No info on shared outdoor space
About the building
231 West 11th Street
231 West 11th Street, New York, NY 10014
2 units
3 stories
1899 built
For sale
0 available units for saleFor rent
0 available units for rentDocuments and permits
View documents and permitsProperty history
- Price Change: No changes
- Days on market: 98 daysThis is the number of days the listing has been on StreetEasy.
| Date | Price | Event |
|---|---|---|
1/15/2016 | $11,750,000 | Sold by Douglas Elliman |
1/15/2016 | $12,000,000 | No longer available |
1/8/2016 | $12,000,000 | In contract |
10/7/2015 | $12,000,000 | Listed by Douglas Elliman |
10/3/2015 | $12,000,000 | No longer available |
Past listing photos
Sign in to take a closer look at how this home compares to similar homes.
Explore West Village
Transit
| Location | Distance |
|---|---|
FLM123at 14th St | 0.11 miles |
1at Christopher St–Sheridan Sq | 0.2 miles |
ACELat 8th Av | 0.21 miles |
ACELat 14th St | 0.24 miles |
PATHat 9th Street Station | 0.25 miles |
About West Village
Rental prices shown are base rent before any fees. Visit listings for cost and fees breakdown.
SalesMedian asking price
Studio
$595K
RentalsMedian asking base rent
Studio
$4,340
Picture a romantic comedy set in New York City: The heroine invariably lives in a cozy walk-up on a cobblestone street in a neighborhood with cute boutiques and trendy cafes on every corner. This movie is set in the West Village. In reality, the West Village is just as picturesque: The neighborhood is tucked between Greenwich Village and the Hudson River and is one of the quietest and most sophisticated pockets of Downtown Manhattan. Primarily residential, with a distinct lack of office buildings, the leafy, off-the-grid streets are peaceful during the day but get livelier at night. That's when well-heeled residents, fashionistas, and literati can all be found mingling over oysters at the area's many low-lit cocktail bars.
Learn more about West Village





























































































































































