$3,550
For Rent
Base rent only. For total monthly price and additional fees, see .
720 ft²
$59 per ft²
5 rooms
1 bed
1 bath
Four-family home
- Greenwood
Under NYC law, you can't be charged a broker fee if you didn't hire a broker.
Listed By
Owner
Listing by Owner
Available
Available now
Days on market
Listed today
Last price change
No changes
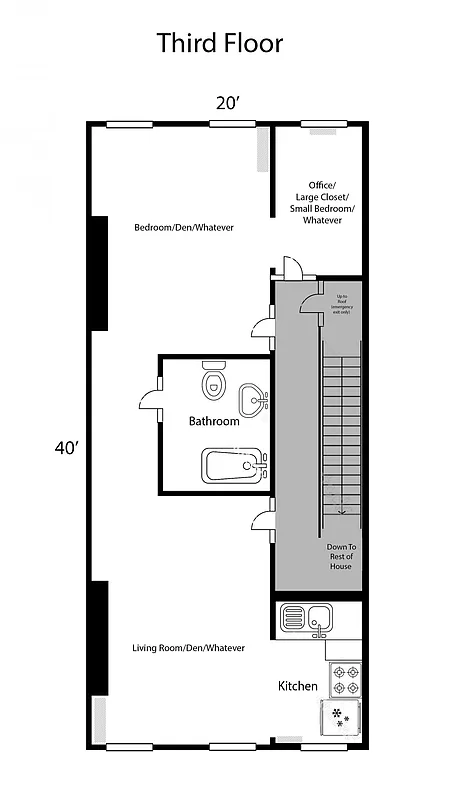
About
Renovated 1.5BR | Quiet Building
Renovated apartment on the Park Slope / South Slope border. I recently learned that NYC considers an 8x8x8 room a legal bedroom, so technically this could be called a 2BR. That feels a bit generous, so we'll call it a 1.5BR.
There is a true bedroom plus a smaller second room that works well as an office, guest room, or flexible space depending on how you live.
Policies
Sorry, policy info isn’t available right now. Check back later.
Home features
No info on home features
Building amenities
No info on building amenities
About the building
232 17th Street
232 17th Street, Brooklyn, NY 11215
4 units
3 stories
1919 built
Property history
Prices shown are base rent only. For total monthly price and additional fees, see .
| Date | Base rent | Event |
|---|---|---|
3/27/2026 | $3,550 | Listed by Owner |
4/8/2019 | $2,200 | |
3/25/2019 | $2,200 |
Sign in to take a closer look at how this home compares to similar homes.
Explore Greenwood
Transit
| Location | Distance |
|---|---|
Rat Prospect Av | 0.11 miles |
Rat 25th St | 0.4 miles |
Fat 4th Av | 0.45 miles |
FGRat 9th St | 0.49 miles |
Fat 7th Av | 0.56 miles |
Similar homes
Prices shown are base rent only and don't include any fees. Visit each listing to see a complete cost breakdown.
Similar Homes looks at ad spend and other factors like location, price, and number of beds and baths.















































































