$2,950
For Rent
Base rent only. For total monthly price and additional fees, see .
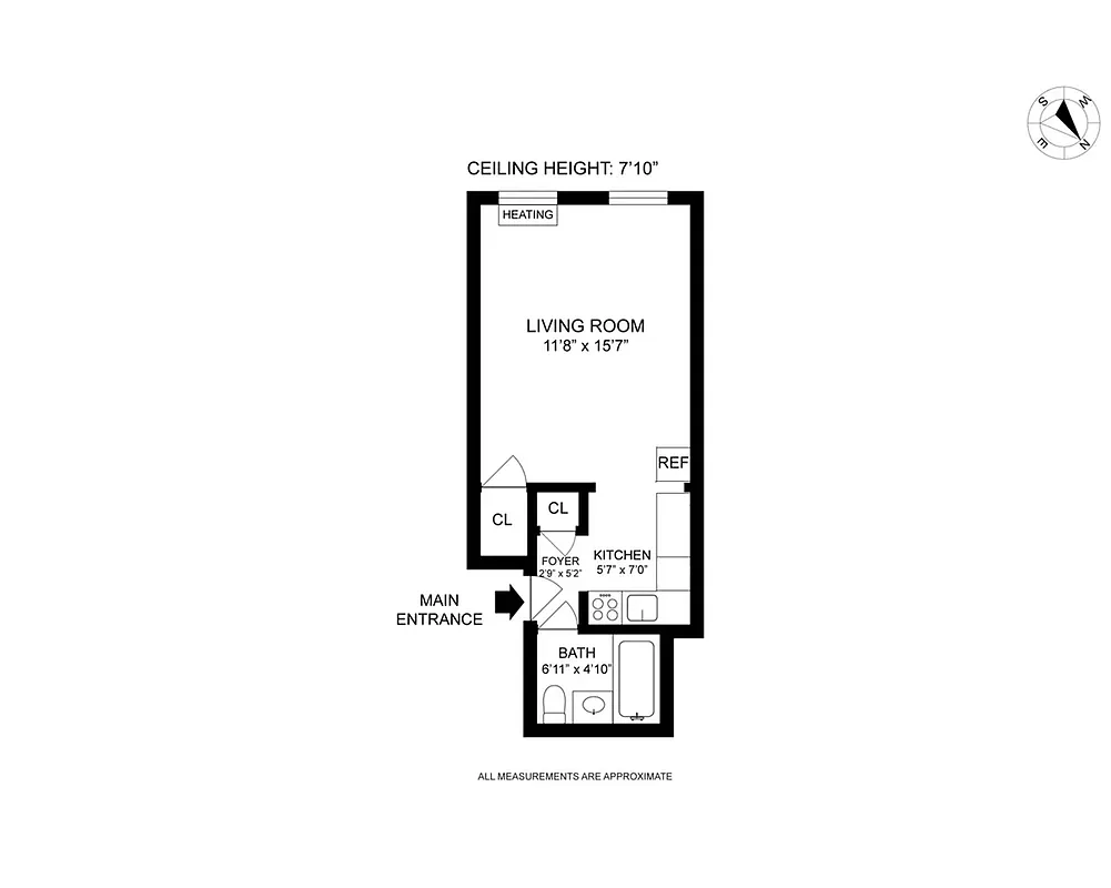
350 ft²
$101 per ft²
3 rooms
Studio
1 bath
Co-op
- Sutton Place
Under NYC law, you can't be charged a broker fee if you didn't hire a broker.
Listed By
This home has been saved by 6 users.
Listing by Nest Seekers International, Limited Liability Broker, 47 44 Vernon Boulevard, Long Island City, NY 11101
Available
4/1/2026
Days on market
Listed today
Last price change
No changes
About
This freshly painted studio apartment with north-facing windows offers a classic New York living experience. Tucked away in a quiet oasis, it is located in a neighborhood renowned for its skyscrapers, the United Nations, and beautiful waterfront views.
Perched on the top floor (three flights up), this walk-up unit features tall ceilings, hardwood floors, crown moldings, ceiling fans, and track lighting.
Policies
Pied-a-terre allowed
Sublets allowed
Home features
Hardwood floors
View
City
Building amenities
Services and facilities
Live-in super
Wellness and recreation
No info on wellness and recreation
Shared outdoor space
No info on shared outdoor space
About the building
233 East 54th Street
233 East 54th Street, New York, NY 10022
13 units
4 stories
1900 built
Property history
Prices shown are base rent only. For total monthly price and additional fees, see .
| Date | Base rent | Event |
|---|---|---|
3/2/2026 | $2,950 | Listed by Nest Seekers International |
10/18/2022 | $2,450 | |
10/3/2022 | $2,450 |
Sign in to take a closer look at how this home compares to similar homes.
Explore Sutton Place
Transit
| Location | Distance |
|---|---|
EM6at Lexington Av–53rd St | under 500 feet |
EM6at 51st St | 0.23 miles |
NRW456at Lexington Av/59th St | 0.29 miles |
EMat 5th Av–53rd St | 0.37 miles |
LIRRat Grand Central | 0.47 miles |
Similar homes
Prices shown are base rent only and don't include any fees. Visit each listing to see a complete cost breakdown.
Similar Homes looks at ad spend and other factors like location, price, and number of beds and baths.


































































