$7,400
For Rent
Base rent only. For total monthly price and additional fees, see .
Rented 7/17/2024
1,200 ft²
$74 per ft²
4 rooms
1 bed
1 bath
Rental unit
- Chelsea
Under NYC law, you can't be charged a broker fee if you didn't hire a broker.
Listed By
This home has been saved by 50 users.
Listing by Argent Advisors LLC, Limited Liability Broker, 551 Fifth Avenue, New York, NY 10176
Unavailable
Rented on 7/17/2024
Days on market
16 days
Last price change
No changes
About
Beautifully renovated 2nd floor apartment in a luxury townhome, which has one floor-through apartment per floor. There is a virtual doorman, fireplace, modern finishes and the building is well secured.
Flexible lease start date from Aug 1, could be open to Sept/Oct move in dates as well.
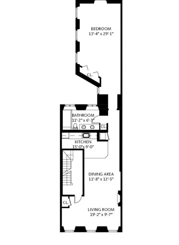
This floor through custom 1,200 square foot apartment offers the perfect living and working environment .
Policies
Sorry, policy info isn’t available right now. Check back later.
Home features
Dishwasher
Fireplace
Wood
Hardwood floors
View
City, Garden, Park, Skyline
Washer/dryer
Building amenities
Services and facilities
Bike room
Laundry in building
Storage space
Cold storage, Locker/cage
Wellness and recreation
No info on wellness and recreation
Shared outdoor space
No info on shared outdoor space
About the building
235 West 16th Street
235 West 16th Street, New York, NY 10011
5 units
4 stories
1920 built
Property history
Prices shown are base rent only. For total monthly price and additional fees, see .
| Date | Base rent | Event |
|---|---|---|
7/17/2024 | $7,400 | Rented by Argent Advisors LLC |
7/1/2024 | $7,400 | Listed by Argent Advisors LLC |
10/12/2023 | $7,299 | |
9/8/2023 | $7,299 | Price decreased by 1% |
9/8/2023 | $7,349 |
Past listing photos
Sign in to take a closer look at how this home compares to similar homes.
Explore Chelsea
Transit
| Location | Distance |
|---|---|
ACELat 14th St | under 500 feet |
1at 18th St | 0.11 miles |
FLM123at 14th St | 0.13 miles |
ACELat 8th Av | 0.14 miles |
PATHat 14th Street Station | 0.29 miles |
About Chelsea
Rental prices shown are base rent before any fees. Visit listings for cost and fees breakdown.
SalesMedian asking price
1 bed
$990K
RentalsMedian asking base rent
1 bed
$5,883
If you're looking for a staid, quiet place to live, Chelsea is not for you. Its thriving arts scene has always been a big draw for creative types. Not surprisingly, residents pay a high price to live in such a hip and happening part of Manhattan. The neighborhood has some of the most exclusive restaurants and bars in the city, and real estate prices are steep — especially for new condos along the High Line.
Slip down many of the side streets, however, and you're likely to find some beautiful and historic townhouses nestled gracefully within the neighborhood's hustle and bustle.
Similar homes
Prices shown are base rent only and don't include any fees. Visit each listing to see a complete cost breakdown.
Similar Homes looks at ad spend and other factors like location, price, and number of beds and baths.





















































































































