2,250 ft²
$1,242 per ft²
6 rooms
3 beds
2.5 baths
Condo
- Yorkville
recorded sale
Sold on 8/17/2016
Verified by closing records
Last listed for $2,795,000
Seller's agent
This home has been saved by 50 users.
Listing by Douglas Elliman, Limited Liability Broker, 575 Madison Avenue -, New York, NY 10022 | Brokerage Listing ID: 2400768
Common charges
$848/mo
Estimated payment
$16,235/mo
Taxes
$521/mo
Tax abatement
No info
About
Seller’s agent
Buyer’s agent
description
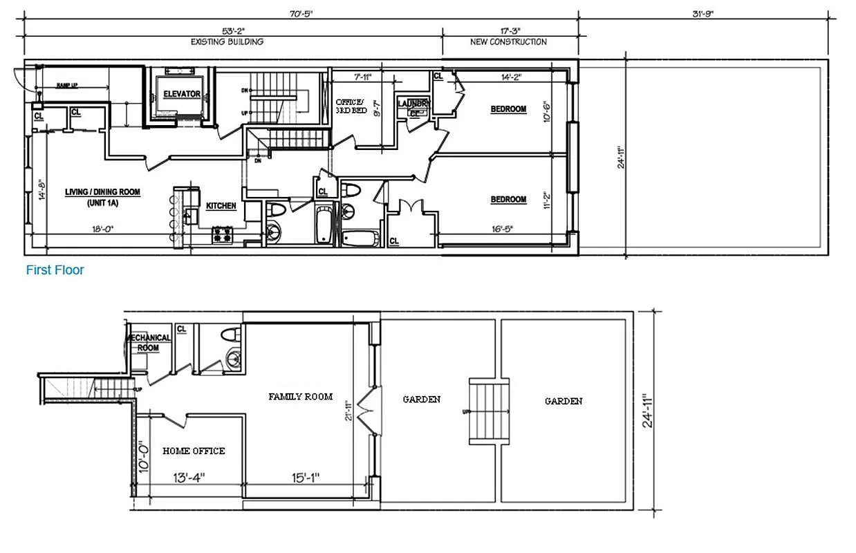
Deal fell thru.....Back on the market! Open House Monday 530-7pm. Apartment has been renovated and professionally staged by Cathy Hobbs, You must see this gorgeous apartment. European designed for modern living, this one-of-a-kind family home (2175 S.F 3BR/2.5BA/home office/private garden +791 S.F) duplex condo has a beautiful layout with superb details.
Policies
Pets allowed
Cats and dogs allowed
Home features
Private outdoor space
Garden, Terrace
Building amenities
Services and facilities
Bike room
Elevator
Wellness and recreation
No info on wellness and recreation
Shared outdoor space
No info on shared outdoor space
About the building
236 East 81st Street
236 East 81st Street, New York, NY 10028
6 units
6 stories
1910 built
For sale
0 available units for saleFor rent
0 available units for rentDocuments and permits
View documents and permitsProperty history
- Price Change: No changes
- Days on market: 86 days
| Date | Price | Event |
|---|---|---|
8/17/2016 | $2,795,000 | Sold by Douglas Elliman |
8/18/2016 | $2,795,000 | No longer available |
7/21/2016 | $2,795,000 | In contract |
4/26/2016 | $2,795,000 | Listed by Douglas Elliman |
8/25/2011 | $2,450,000 |
Past listing photos
Sign in to take a closer look at how this home compares to similar homes.
Explore Yorkville
Transit
| Location | Distance |
|---|---|
Qat 86th St | 0.14 miles |
6at 77th St | 0.26 miles |
456at 86th St | 0.32 miles |
Qat 72nd St | 0.45 miles |
Qat 96th St | 0.67 miles |
About Yorkville
Rental prices shown are base rent before any fees. Visit listings for cost and fees breakdown.
SalesMedian asking price
3 beds
$2.8M
RentalsMedian asking base rent
3 beds
$6,000
When George Washington commandeered the building site that would eventually become Gracie Mansion, he probably didn't imagine that this peaceful, riverside enclave would become the lively residential neighborhood it is today. Between then and now, Yorkville has seen a lot of change. Tony mansions and elevated trains went up at the turn of the century and then came down in the postwar years as a middle-class population moved in.
Now, the neighborhood is a haven of high-rise co-ops and condos interspersed with quiet rows of townhouses. The mixed housing stock makes Yorkville a practical choice for anyone seeking a slowed-down Manhattan vibe. Several avenues over from the throngs of Lexington and Third Avenues, Yorkville maintains a low-key, no-frills feel — it's a place where you'll find more diners and donut shops than upscale lounges and boutiques. This homey attitude is writ in its storefronts, where the food is kept simple and the owners are often from around the block.
















































































































































