$1,995,000
For Sale
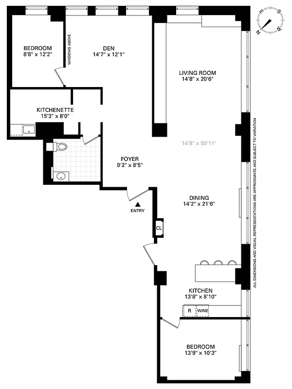
- ft²
4 rooms
2 beds
1 bath
Co-op
- Chelsea
Resale
Seller's agents
This home has been saved by 1 user.
Listing by Brown Harris Stevens, Real Estate Principal Office, 100 Fifth Avenue, New York, NY 10011
Listing updated in the last 2 days
Maintenance fees
$3,118/mo
Estimated payment
$12,827/mo
Legal disclaimerAll calculations are estimates provided by StreetEasy for informational purposes only. Actual amounts or financing terms may vary. Please contact your mortgage provider for specifics.Taxes
Included in maintenance fees
Tax abatement
No info
About
Seller’s agent
description
The ideal live/work opportunity with exceptional light and volume in the Capitol Fur Building.
Currently configured as an office, this renovated industrial loft offers a flexible canvas for a distinctive residential conversion, subject to co-op board approval. Two oversized exposures facing south and east bathe the space in steady natural light, reflecting beautifully off the wood floors and accentuating the loft’s impressive ceiling height.
Policies
Pets allowed
Cats and dogs allowed
Sublets allowed
Home features
Central air
Dishwasher
Hardwood floors
Building amenities
Services and facilities
Elevator
Wellness and recreation
No info on wellness and recreation
Shared outdoor space
Roof deck
About the building
236 West 26th Street
236 West 26th Street, New York, NY 10001
25 units
12 stories
1925 built
For sale
2 available units for saleFor rent
0 available units for rentDocuments and permits
View documents and permitsProperty history
- Price Change: No changes
- Days on market: Listed todayThis is the number of days the listing has been on StreetEasy.
| Date | Price | Event |
|---|---|---|
2/27/2026 | $1,995,000 | Listed by Brown Harris Stevens |
Sign in to take a closer look at how this home compares to similar homes.
Explore Chelsea
Transit
| Location | Distance |
|---|---|
CEat 23rd St | under 500 feet |
1at 28th St | 0.14 miles |
1at 23rd St | 0.15 miles |
FMat 23rd St | 0.28 miles |
PATHat 23rd Street Station | 0.3 miles |
About Chelsea
Rental prices shown are base rent before any fees. Visit listings for cost and fees breakdown.
SalesMedian asking price
2 beds
$2.25M
RentalsMedian asking base rent
2 beds
$7,750
If you're looking for a staid, quiet place to live, Chelsea is not for you. Its thriving arts scene has always been a big draw for creative types. Not surprisingly, residents pay a high price to live in such a hip and happening part of Manhattan. The neighborhood has some of the most exclusive restaurants and bars in the city, and real estate prices are steep — especially for new condos along the High Line.
Slip down many of the side streets, however, and you're likely to find some beautiful and historic townhouses nestled gracefully within the neighborhood's hustle and bustle.






























































































































