750 ft²
$506 per ft²
3 rooms
1 bed
1 bath
Co-op
- Hudson Heights
Resale
recorded sale
Sold on 1/11/2024
Verified by closing records
Last listed for $380,000
Seller's agent
This home has been saved by 61 users.
Listing by Spire Group, Corporate Broker, 401 New Karner Road, Albany, NY 12205
Maintenance fees
$811/mo
Estimated payment
$2,783/mo
Legal disclaimerAll calculations are estimates provided by StreetEasy for informational purposes only. Actual amounts or financing terms may vary. Please contact your mortgage provider for specifics.Taxes
Included in maintenance fees
Tax abatement
No info
About
Seller’s agent
Buyer’s agent
description
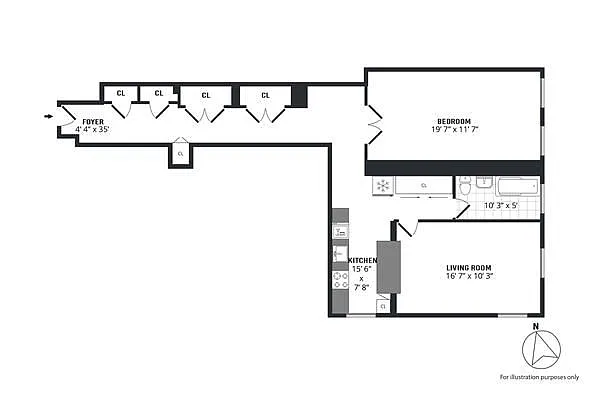
Charming Top Floor (6th), corner, 1-bedroom unit with a unique, pre-war layout.
The 35-foot entry hall is full of closets and storage, with a dining nook/office area at the end. French doors hand-painted by a local artist lead into the bedroom (which can be easily converted back to the living room if you prefer). The large, windowed kitchen features a pass-through to the living room, with ample counter space, many cabinets and a less than 1-year-old GE dishwasher.
Policies
Pets allowed
Cats and dogs allowed
Home features
Dishwasher
Hardwood floors
Building amenities
Services and facilities
Elevator
Laundry in building
Live-in super
Storage space
Wellness and recreation
No info on wellness and recreation
Shared outdoor space
No info on shared outdoor space
About the building
24 Bennett Avenue
24 Bennett Avenue, New York, NY 10033
58 units
6 stories
1920 built
For sale
0 available units for saleFor rent
0 available units for rentDocuments and permits
View documents and permitsProperty history
- Price Change: ↓ $9,000 (-2.3%) on 10/2/23
- Days on market: 136 daysThis is the number of days the listing has been on StreetEasy.
| Date | Price | Event |
|---|---|---|
1/11/2024 | $380,000 | Sold by Spire Group |
10/16/2023 | $380,000 | In contract |
10/2/2023 | $380,000 | Price decreased by 2% |
7/10/2023 | $389,000 | Price decreased by 3% |
6/2/2023 | $399,000 | Listed by Spire Group |
Past listing photos
Sign in to take a closer look at how this home compares to similar homes.
Explore Hudson Heights
Transit
| Location | Distance |
|---|---|
Aat 181st St | under 500 feet |
1at 181st St | 0.21 miles |
Aat 175th St | 0.29 miles |
1at 191st St | 0.39 miles |
Aat 190th St | 0.52 miles |




























































































