$25,000
For Rent
Base rent only. For total monthly price and additional fees, see .
No longer available 6/2/2012
3,760 ft²
$79 per ft²
2 rooms
Studio
0 baths
House
- Turtle Bay
Under NYC law, you can't be charged a broker fee if you didn't hire a broker.
Listed By
Scott Schlachter
Licensed Real Estate Salesperson
Douglas Elliman
This home has been saved by 1 user.
Listing by Douglas Elliman, Limited Liability Broker, 575 Madison Avenue, New York, NY 10022 | Brokerage Listing ID: 1330506
Unavailable
No longer available on 6/2/2012
Days on market
206 days
Last price change
No changes
About
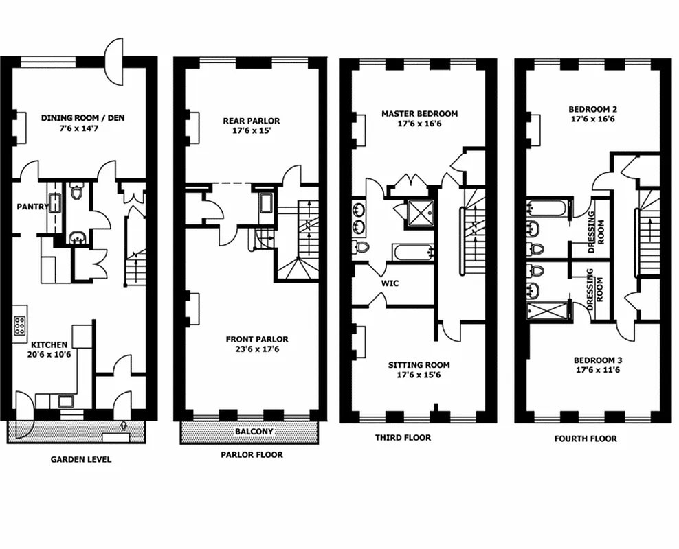
Katharine Hepburns four story Turtle Bay Brownstone with Expansive Magical Gardens. Re-live the glamour in the one time surroundings and home of the movie star legend Katharine Hepburn, The original mirrored dressing room area retains the glitter. Entire house has been totally renovated to perfection with the highest quality,and meticulous attention to details.
Policies
Sorry, policy info isn’t available right now. Check back later.
Home features
Fireplace
Building amenities
No info on building amenities
About the building
244 East 49th Street
244 East 49th Street, New York, NY 10017
1 unit
4 stories
1899 built
Property history
Prices shown are base rent only. For total monthly price and additional fees, see .
| Date | Base rent | Event |
|---|---|---|
6/2/2012 | $25,000 | No longer available |
11/9/2011 | $25,000 | Listed by Douglas Elliman |
6/10/2011 | $25,000 | |
3/11/2011 | $25,000 | |
3/10/2011 | $25,000 |
Sign in to take a closer look at how this home compares to similar homes.
Explore Turtle Bay
Transit
| Location | Distance |
|---|---|
EM6at 51st St | 0.21 miles |
EM6at Lexington Av–53rd St | 0.22 miles |
LIRRat Grand Central | 0.31 miles |
S4567at Grand Central–42nd St | 0.34 miles |
EMat 5th Av–53rd St | 0.43 miles |
Similar homes
Prices shown are base rent only and don't include any fees. Visit each listing to see a complete cost breakdown.
Similar Homes looks at ad spend and other factors like location, price, and number of beds and baths.












































































































































































