$970,000
For Sale
Delisted 10/7/2025
- ft²
4 rooms
2 beds
1 bath
Co-op
- Prospect Heights
Resale
Seller's agents
This home has been saved by 76 users.
Listing by Compass, Corporate Broker, 514 2nd Street, Brooklyn, NY 11215
Maintenance fees
$1,817/mo
Estimated payment
$6,754/mo
Legal disclaimerAll calculations are estimates provided by StreetEasy for informational purposes only. Actual amounts or financing terms may vary. Please contact your mortgage provider for specifics.Taxes
Included in maintenance fees
Tax abatement
No info
About
Seller’s agent
description
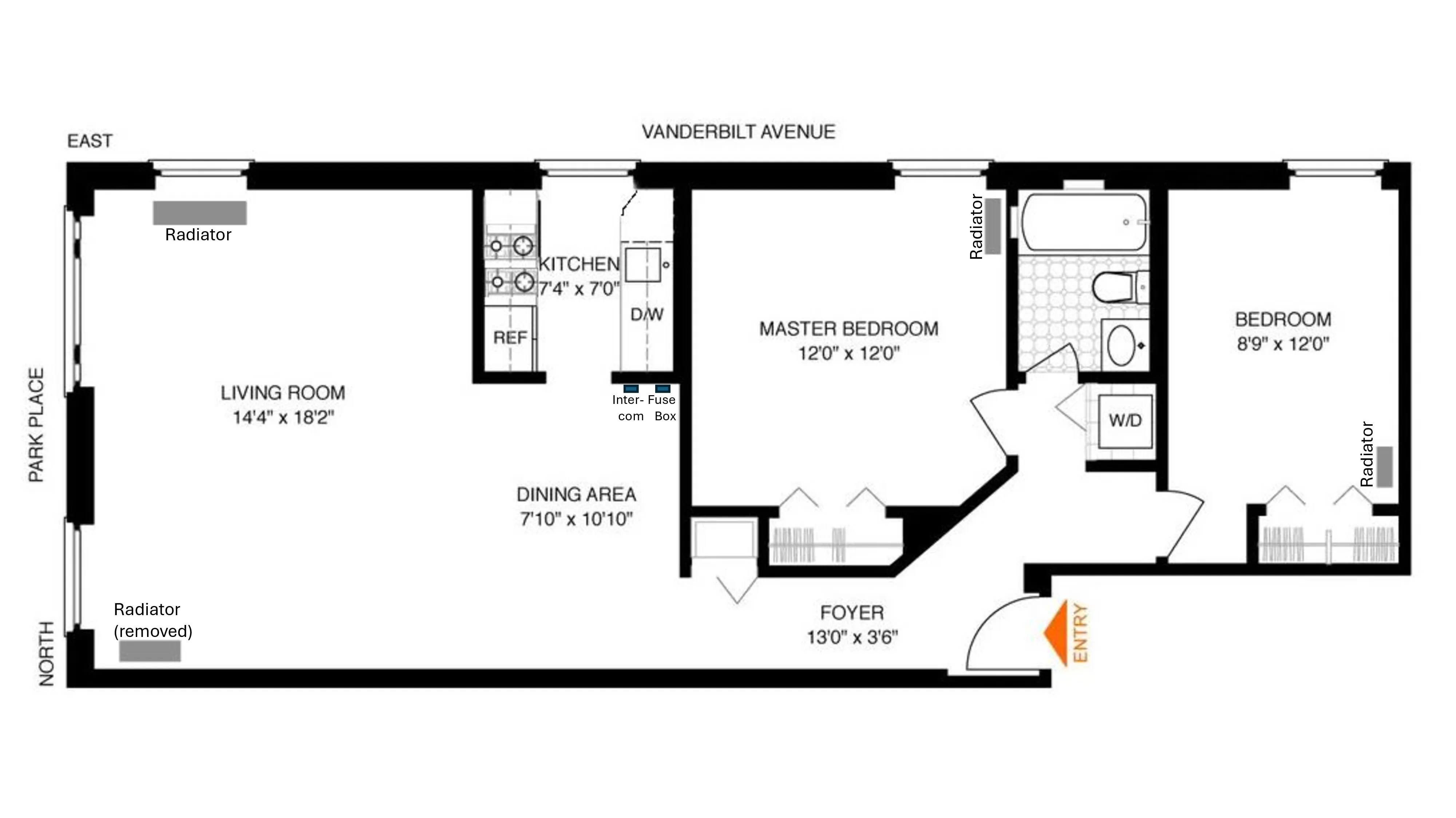
Welcome to 4B at 254 Park Place, a luminous top-floor corner home in the heart of Prospect Heights.
This two-bedroom, one-bathroom residence combines prewar charm with thoughtful updates, all wrapped in unbeatable natural light. Perched on the fourth floor, 4B is blessed with northern and eastern exposures through wide, open windows that frame treetop and streetscape views of bustling Vanderbilt Avenue.
Policies
Pets allowed
Cats and dogs allowed
Home features
Hardwood floors
View
City, Skyline
Washer/dryer
Building amenities
Services and facilities
Bike room
Storage space
Locker/cage
Wellness and recreation
No info on wellness and recreation
Shared outdoor space
Roof deck
About the building
254 Park Place
254 Park Place, Brooklyn, NY 11238
14 units
5 stories
1915 built
For sale
0 available units for saleFor rent
0 available units for rentDocuments and permits
View documents and permitsProperty history
- Price Change: No changes
- Days on market: 12 daysThis is the number of days the listing has been on StreetEasy.
| Date | Price | Event |
|---|---|---|
10/7/2025 | $970,000 | Delisted by Compass |
9/25/2025 | $970,000 | Listed by Compass |
Sign in to take a closer look at how this home compares to similar homes.
Explore Prospect Heights
Transit
| Location | Distance |
|---|---|
23at Grand Army Plaza | 0.12 miles |
BQat 7th Av | 0.15 miles |
23at Bergen St | 0.39 miles |
23at Eastern Parkway–Brooklyn Museum | 0.42 miles |
Cat Clinton & Washington Avs | 0.5 miles |
About Prospect Heights
Rental prices shown are base rent before any fees. Visit listings for cost and fees breakdown.
SalesMedian asking price
2 beds
$1.55M
RentalsMedian asking base rent
2 beds
$5,437
Prospect Heights offers a vibrant mix of old and new Brooklyn. Often referred to as a fallback for people unable to afford Park Slope, the area has recently become known for its own unique personality - as well as its rising real estate value. The commercial strips of Vanderbilt and Washington Avenues offer a mix of bodegas and inveterate neighborhood standbys next to a new spate of hipster-centric bars and restaurants. Turn down any side street, however, and you can encounter gorgeous old brownstones surrounded by quiet greenery.
Learn more about Prospect Heights
































































































