$3,499,999
For Sale
Delisted 3/11/2022
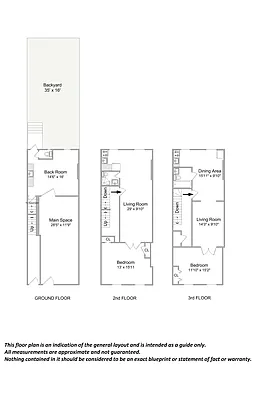
4,700 ft²
$744 per ft²
20 rooms
4 beds
4 baths
Mixed-use building
- Boerum Hill
Sponsor unit
Sponsor unitA unit being sold for the first time. It’s typically owned by the building. For condos, this is often the developer. For co-ops, this is often the building’s original owner before it went co-op.
Seller's agent
This home has been saved by 36 users.
Listing by Carroll Gardens Realty, Individual Broker, 262 Smith Street, Brooklyn, NY 11231
Common charges
Not applicable
Estimated payment
$18,083/mo
Legal disclaimerAll calculations are estimates provided by StreetEasy for informational purposes only. Actual amounts or financing terms may vary. Please contact your mortgage provider for specifics.Taxes
No info
Tax abatement
No info
About
Seller’s agent
description
Located in Carroll Gardens / Cobble Hill, one of Brooklyn’s prime areas, these two properties are phenomenal opportunities to invest in. This package deal for $4,200,000 includes two mixed use buildings valued at $2,100,000 per building. The total footprint of the combined lots is 34x160. Properties like these rarely become available, boasting two stores plus basements and four one bedroom apartments.
Policies
Sorry, policy info isn’t available right now. Check back later.
Home features
Hardwood floors
View
Garden
Building amenities
No info on building amenities
About the building
259 Smith Street
259 Smith Street, Brooklyn, NY 11231
2 units
3 stories
1931 built
For sale
0 available units for saleFor rent
0 available units for rentDocuments and permits
View documents and permitsProperty history
- Price Change: ↓ $250,001 (-6.7%) on 11/5/21
- Days on market: 292 daysThis is the number of days the listing has been on StreetEasy.
| Date | Price | Event |
|---|---|---|
3/11/2022 | $3,499,999 | Delisted by Carroll Gardens Realty |
11/5/2021 | $3,499,999 | Price decreased by 7% |
11/5/2021 | $3,750,000 | Listed by Carroll Gardens Realty |
9/25/2021 | $3,750,000 | Delisted by Carroll Gardens Realty |
9/8/2021 | $3,750,000 | Price decreased by 4% |
Sign in to take a closer look at how this home compares to similar homes.
Explore Boerum Hill
Transit
| Location | Distance |
|---|---|
FGat Carroll St | 0.16 miles |
FGat Bergen St | 0.19 miles |
ACGat Hoyt & Schermerhorn | 0.55 miles |
FGRat Smith–9th St | 0.62 miles |
Rat Union St | 0.63 miles |
About Boerum Hill
Rental prices shown are base rent before any fees. Visit listings for cost and fees breakdown.
SalesMedian asking price
4 beds
$5.49M
Energetic and inviting, Boerum Hill continues its run as one of New York City's most desirable neighborhoods, all while remaining a secret quietly shared amongst its happy residents. Its appeal and vibrancy stem from its housing stock. Handsome Greek revival and Italianate townhouses line the wide, tree-lined streets. These beautiful brick and limestone buildings have long been a mecca for Brooklynites seeking an enclave close to Downtown Brooklyn and lower Manhattan — but far from crowds and highrises.
Main drags like Bergen Street, Atlantic Avenue, and Smith Street are peppered with charming boutiques like Collier West in addition to welcoming cafes, bars, and restaurants, including Rucola, French Louie, and Bacchus, to name a few. Fans of new construction will find new condo developments too. Saint Marks Place, The Hendrick, The Boerum, and The Bergen have expanded buyers' opportunities. Renters will also find plenty of options here in a broad range of prices, from the genuinely affordable to the luxurious.

























































































































































































































































