- ft²
8 rooms
4 beds
3.5 baths
Mixed-use building
- NoMad
recorded sale
Sold on 5/25/2011
Verified by closing records
Last listed for $3,900,000
Seller's agent
Listing by Brown Harris Stevens, Real Estate Principal Office, 445 Park Avenue, New York, NY 10022 | MLS #: 247146
Common charges
Not applicable
Estimated payment
$23,277/mo
Legal disclaimerAll calculations are estimates provided by StreetEasy for informational purposes only. Actual amounts or financing terms may vary. Please contact your mortgage provider for specifics.Taxes
No info
Tax abatement
No info
About
Seller’s agent
description
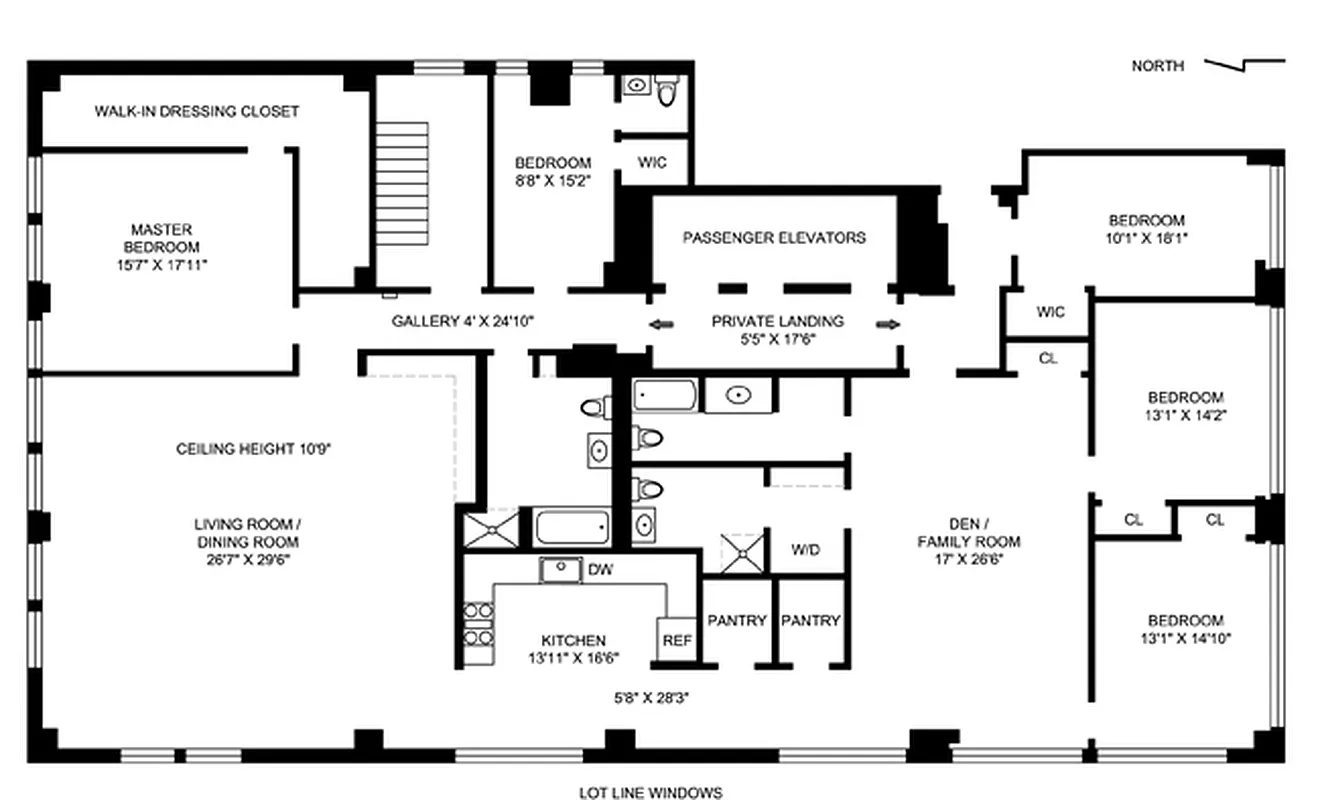
Conveniently located on Fifth Avenue and 29th Street, this full floor loft is extremely light with North, South and Eastern exposures through 24 large windows. High ceilings, wood floors, two zone central air-conditioning, enormous closets and storage space are some of the special features of this loft. There is a separate master suite with an adjacent room that can be used as a baby's room, staff room or home office.
Policies
Pets allowed
Cats and dogs allowed
Home features
Central air
Building amenities
Services and facilities
Doorman
Full-time
Elevator
Laundry in building
Wellness and recreation
No info on wellness and recreation
Shared outdoor space
No info on shared outdoor space
About the building
260 5th Avenue
260 5th Avenue, New York, NY 10001
- units
12 stories
1900 built
For sale
0 available units for saleFor rent
0 available units for rentDocuments and permits
View documents and permitsProperty history
- Price Change: No changes
- Days on market: 35 daysThis is the number of days the listing has been on StreetEasy.
| Date | Price | Event |
|---|---|---|
12/10/2012 | $3,650,000 | |
12/11/2012 | $3,625,000 | |
12/11/2012 | $3,625,000 | |
9/28/2012 | $3,625,000 | |
8/22/2012 | $3,625,000 |
Past listing photos
Sign in to take a closer look at how this home compares to similar homes.
Explore NoMad
Transit
| Location | Distance |
|---|---|
RWat 28th St | under 500 feet |
6at 28th St | 0.2 miles |
BDFMNQRWat 34th St–Herald Sq | 0.22 miles |
RWat 23rd St | 0.25 miles |
6at 33rd St | 0.25 miles |







































































































































































