- ft²
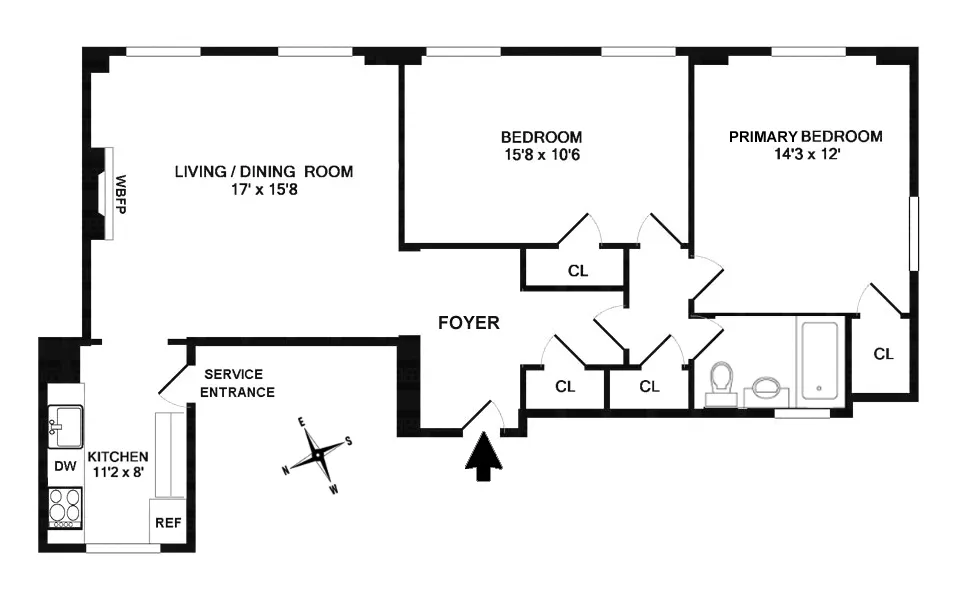
4 rooms
2 beds
1 bath
Co-op
- Murray Hill
Resale
recorded sale
Sold on 6/28/2023
Verified by closing records
Last listed for $1,140,000
Seller's agents
This home has been saved by 63 users.
Listing by Brown Harris Stevens, Real Estate Principal Office, 142 West 57th Street, New York, NY 10019
Maintenance fees
$2,063/mo
Estimated payment
$7,651/mo
Legal disclaimerAll calculations are estimates provided by StreetEasy for informational purposes only. Actual amounts or financing terms may vary. Please contact your mortgage provider for specifics.Taxes
Included in maintenance fees
Tax abatement
No info
About
Seller’s agent
Buyer’s agent
description
This spacious, beautifully renovated 2-bedroom apartment has great ceiling height, incredible natural sunlight, a working fireplace, and undeniable Pre-war charm, all located at 264 Lexington Avenue, a boutique, pet-friendly, pre-war co-op in the heart of Murray Hill.
This high-floor gem is an East-facing corner unit that features oversized windows, generous 9.5' ceilings and three exposures.
Policies
Pets allowed
Pied-a-terre allowed
Home features
Dishwasher
Fireplace
Wood
Hardwood floors
View
City, Skyline
Building amenities
Services and facilities
Doorman
Elevator
Laundry in building
Storage space
Locker/cage
Wellness and recreation
No info on wellness and recreation
Shared outdoor space
Roof deck
About the building
264 Lexington Avenue
264 Lexington Avenue, New York, NY 10016
35 units
12 stories
1924 built
For sale
1 available units for saleFor rent
0 available units for rentDocuments and permits
View documents and permitsProperty history
- Price Change: ↓ $50,000 (-4.2%) on 10/11/22
- Days on market: 244 daysThis is the number of days the listing has been on StreetEasy.
| Date | Price | Event |
|---|---|---|
6/28/2023 | $1,110,000 | Sold by Brown Harris Stevens |
3/15/2023 | $1,140,000 | In contract |
10/11/2022 | $1,140,000 | Price decreased by 4% |
7/14/2022 | $1,190,000 | Listed by Brown Harris Stevens |
5/5/2016 | $1,120,000 |
Past listing photos
Sign in to take a closer look at how this home compares to similar homes.
Explore Murray Hill
Transit
| Location | Distance |
|---|---|
6at 33rd St | 0.13 miles |
S4567at Grand Central–42nd St | 0.3 miles |
6at 28th St | 0.37 miles |
BDFM7at 5th Av | 0.42 miles |
BDFMNQRWat 34th St–Herald Sq | 0.45 miles |
About Murray Hill
Rental prices shown are base rent before any fees. Visit listings for cost and fees breakdown.
SalesMedian asking price
2 beds
$1.25M
RentalsMedian asking base rent
2 beds
$5,800
Murray Hill has a lively energy most hours of the day and night. In the morning, the streets are filled with professionals looking polished in their Brooks Brothers suits as they head to work. Come evening, you'll see the crowds returning home decked out in gym clothes and schlepping bags of take-out dinner and Trader Joe's. The neighborhood has a down-to-earth, casual vibe, and there's always a big game airing at one of the many sports bars along the Third Avenue strip. Many of Murray Hill's residents are renters who come and go, but the place eschews intransigence and maintains a familiar, college-town feel.
Learn more about Murray Hill


























































































































