$4,000
For Rent
Base rent only. For total monthly price and additional fees, see .
Rented 10/1/2024
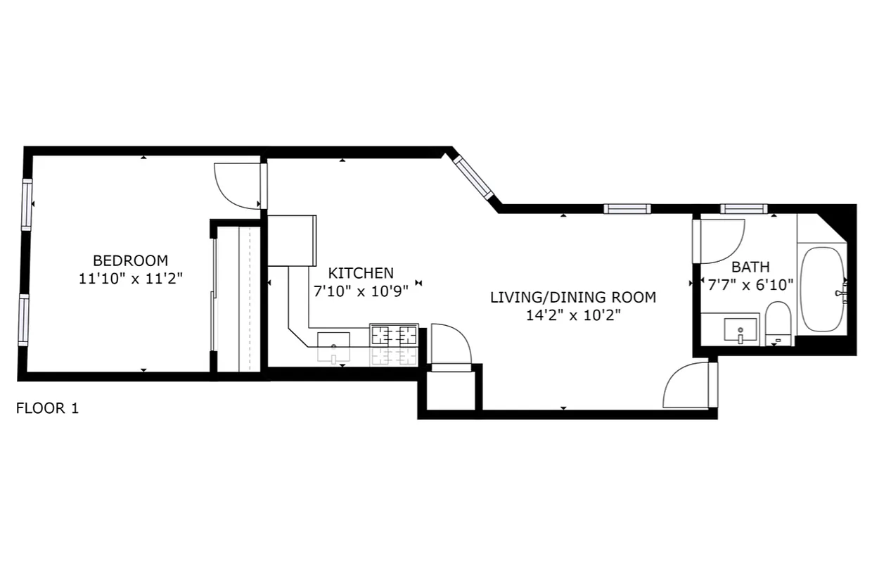
- ft²
1 room
1 bed
1 bath
Condo
- West Village
Under NYC law, you can't be charged a broker fee if you didn't hire a broker.
Listed By
This home has been saved by 101 users.
Listing by Compass, Corporate Broker, 110 5th Avenue, New York, NY 10011
Unavailable
Rented on 10/1/2024
Days on market
7 days
Last price change
No changes
About
FIRST SHOWINGS SATURDAY SEPTEMBER 14TH 12-1:30 OPEN HOUSE
This bright and charming one bedroom West Village condo, basked in light with open exposures that look out onto Perry Street, arguably one of the most beautiful tree-lined blocks in the West Village and all of NYC, is now available for rent.
The residence features high ceilings with tall windows that provide an open and airy feeling as well as gleaming hardwood floors and an oversized bathroom that add to the charm of the space.
Policies
Sorry, policy info isn’t available right now. Check back later.
Home features
Dishwasher
Hardwood floors
View
City
Building amenities
No info on building amenities
About the building
28 Perry Street
28 Perry Street, New York, NY 10014
17 units
5 stories
1900 built
Property history
Prices shown are base rent only. For total monthly price and additional fees, see .
| Date | Base rent | Event |
|---|---|---|
10/1/2024 | $4,000 | Rented by Compass |
9/16/2024 | $4,000 | In contract |
9/9/2024 | $4,000 | Listed by Compass |
11/14/2023 | $3,295 | |
9/25/2020 | $3,295 |
Past listing photos
Sign in to take a closer look at how this home compares to similar homes.
Explore West Village
Transit
| Location | Distance |
|---|---|
1at Christopher St–Sheridan Sq | 0.13 miles |
FLM123at 14th St | 0.15 miles |
PATHat 9th Street Station | 0.19 miles |
ABCDEFMat West 4th St | 0.2 miles |
ACELat 8th Av | 0.28 miles |
About West Village
Rental prices shown are base rent before any fees. Visit listings for cost and fees breakdown.
SalesMedian asking price
1 bed
$1.3M
RentalsMedian asking base rent
1 bed
$5,495
Picture a romantic comedy set in New York City: The heroine invariably lives in a cozy walk-up on a cobblestone street in a neighborhood with cute boutiques and trendy cafes on every corner. This movie is set in the West Village. In reality, the West Village is just as picturesque: The neighborhood is tucked between Greenwich Village and the Hudson River and is one of the quietest and most sophisticated pockets of Downtown Manhattan. Primarily residential, with a distinct lack of office buildings, the leafy, off-the-grid streets are peaceful during the day but get livelier at night. That's when well-heeled residents, fashionistas, and literati can all be found mingling over oysters at the area's many low-lit cocktail bars.
Learn more about West VillageSimilar homes
Prices shown are base rent only and don't include any fees. Visit each listing to see a complete cost breakdown.
Similar Homes looks at ad spend and other factors like location, price, and number of beds and baths.




























































