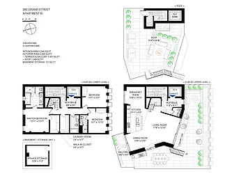
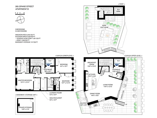
2,345 ft²
$1,471 per ft²
6 rooms
3 beds
3.5 baths
Mixed-use building
- Williamsburg
Sponsor unit
Sponsor unitA unit being sold for the first time. It’s typically owned by the building. For condos, this is often the developer. For co-ops, this is often the building’s original owner before it went co-op.
recorded sale
Sold on 10/1/2021
Verified by closing records
Last listed for $3,650,000
Seller's agents
This home has been saved by 116 users.
Listing by Compass, Corporate Broker, 110 5th Avenue, New York, NY 10011
Common charges
Not applicable
Estimated payment
$21,202/mo
Legal disclaimerAll calculations are estimates provided by StreetEasy for informational purposes only. Actual amounts or financing terms may vary. Please contact your mortgage provider for specifics.Taxes
$1,423/mo
Tax abatement
No info
About
Seller’s agent
description
Nestled in the heart of Williamsburg, Penthouse B at 285 Grand Street is an incredible 2,345 square foot three bed, three-and-a-half bath duplex with an additional 2,450 square feet of private outdoor space across two roof terraces. An entertainer’s paradise, the living room features oversized windows drenched in sunlight and is perched atop Wililamsburg's newest condo development.
Policies
Sorry, policy info isn’t available right now. Check back later.
Home features
Central air
Dishwasher
Hardwood floors
Private outdoor space
Terrace
Building amenities
No info on building amenities
About the building
285 Grand Street
285 Grand Street, Brooklyn, NY 11211
2 units
4 stories
2015 built
For sale
0 available units for saleFor rent
0 available units for rentDocuments and permits
View documents and permitsProperty history
- Price Change: No changes
- Days on market: 110 daysThis is the number of days the listing has been on StreetEasy.
| Date | Price | Event |
|---|---|---|
10/1/2021 | $3,450,000 | Sold by Compass |
4/12/2021 | $3,650,000 | In contract |
12/23/2020 | $3,650,000 | Listed by Compass |
Past listing photos
Sign in to take a closer look at how this home compares to similar homes.
Explore Williamsburg
Transit
| Location | Distance |
|---|---|
Lat Bedford Av | 0.26 miles |
GLat Metropolitan Av | 0.31 miles |
JMZat Marcy Av | 0.32 miles |
GLat Lorimer St | 0.44 miles |
JMat Hewes St | 0.45 miles |
About Williamsburg
Rental prices shown are base rent before any fees. Visit listings for cost and fees breakdown.
SalesMedian asking price
3 beds
$2.6M
RentalsMedian asking base rent
3 beds
$5,675
Williamsburg is Brooklyn's booming epicenter with a well-deserved and worldwide reputation for being an influential hub thanks to a thriving cultural scene. Here you will find eye-catching new construction, brownstones, and prewars sitting next to historic buildings on streets dotted with restaurants, art spaces, boutiques, and more. With a Manhattan-facing waterfront (hello Domino Park!) and its large weekend markets (we're talking about you, Smorgasburg, and Artists & Fleas), the neighborhood is ideal for strolling and people watching. Another fringe benefit is Williamsburg's proximity to Manhattan via the G, L, M, and N subway lines.
Learn more about Williamsburg


























































































































































































