$2,575,000
For Sale
2,648 ft²
$972 per ft²
15 rooms
3 beds
3+ baths
House
- Prospect Lefferts Gardens
Resale
This home has been saved by 88 users.
Listing by Compass, Corporate Broker, 110 5th Avenue, New York, NY 10011
Common charges
Not applicable
Estimated payment
$13,625/mo
Legal disclaimerAll calculations are estimates provided by StreetEasy for informational purposes only. Actual amounts or financing terms may vary. Please contact your mortgage provider for specifics.Taxes
$576/mo
Tax abatement
No info
About
Seller’s agent
description
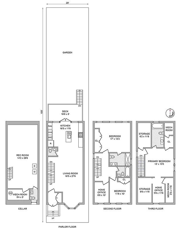
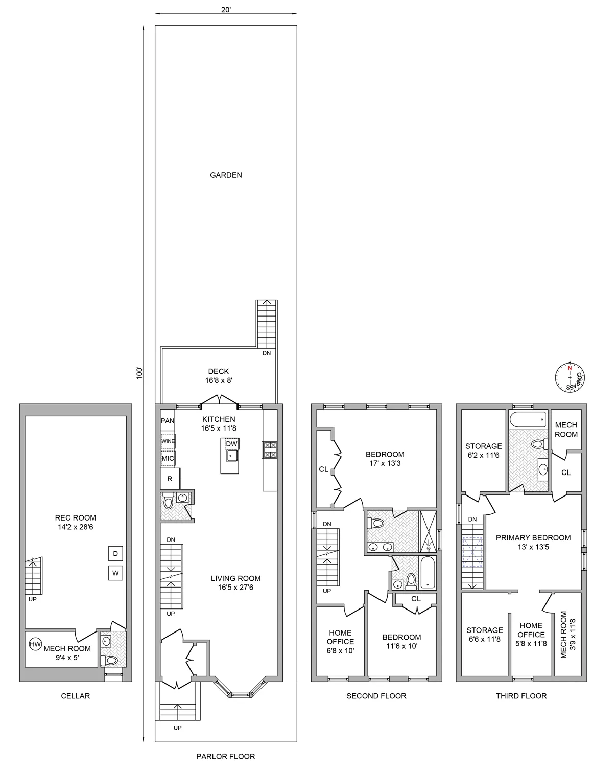
Originally constructed in 1910, 287 Midwood Street has been meticulously transformed to seamlessly blend historic charm with modern luxury. This distinguished three-story single-family residence offers 3 bedrooms with 2 home offices, 3 full bathrooms, and 2 powder rooms, all complemented by high-end finishes and state-of-the-art technology.
Policies
Sorry, policy info isn’t available right now. Check back later.
Home features
Central air
Dishwasher
Hardwood floors
Private outdoor space
Garden
Washer/dryer
Building amenities
No info on building amenities
About the building
287 Midwood Street
287 Midwood Street, Brooklyn, NY 11225
1 unit
3 stories
1910 built
For sale
1 available units for saleFor rent
0 available units for rentDocuments and permits
View documents and permitsProperty history
- Price Change: No changes
- Days on market: 88 daysThis is the number of days the listing has been on StreetEasy.
| Date | Price | Event |
|---|---|---|
10/23/2025 | $2,575,000 | Listed by Compass |
Sign in to take a closer look at how this home compares to similar homes.
Explore Prospect Lefferts Gardens
Transit
| Location | Distance |
|---|---|
25at Sterling St | 0.2 miles |
25at Winthrop St | 0.22 miles |
25at President St | 0.54 miles |
BQSat Prospect Park | 0.57 miles |
BQat Parkside Av | 0.64 miles |































































































































































































































