$635,000
For Sale
No longer available 11/26/2024
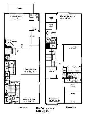
1,780 ft²
$356 per ft²
2 rooms
3 beds
2.5 baths
Other type
- Secaucus
Seller's agent
Yang Lou
Realmart Realty
This home has been saved by 1 user.
Listing by Realmart Realty | MLS #: 240019928
Common charges
Not applicable
Estimated payment
$3,785/mo
Legal disclaimerAll calculations are estimates provided by StreetEasy for informational purposes only. Actual amounts or financing terms may vary. Please contact your mortgage provider for specifics.Taxes
No info
Tax abatement
No info
About
Seller’s agent
description
3 bedroom/2.5 bath, 1780sf duplex unit in Harmon Cove I. Prime Location, Fully renovated, spacious with gorgeous river view. Open floor plan, wood flooring throughout. Living room features wood burning fireplace, overseeing the water. High-end stainless steel appliances, wood cabinets, granite countertop and tiled backsplash. Topnotch rangehood venting outside of the house.
Policies
Sorry, policy info isn’t available right now. Check back later.
Home features
Central air
Dishwasher
Fireplace
Private outdoor space
Terrace
Washer/dryer
Building amenities
Services and facilities
Parking
Wellness and recreation
Children's playroom
Shared outdoor space
No info on shared outdoor space
About the building
288 Sunset Key
288 Sunset Key, Secaucus, NJ 07094
- units
- stories
- built
Property history
- Price Change: No changes
- Days on market: 48 daysThis is the number of days the listing has been on StreetEasy.
| Date | Price | Event |
|---|---|---|
11/26/2024 | $635,000 | No longer available |
10/9/2024 | $635,000 | Listed by Realmart Realty |
Sign in to take a closer look at how this home compares to similar homes.















































































































































