$3,650
For Rent
Base rent only. For total monthly price and additional fees, see .
Rented 4/7/2016
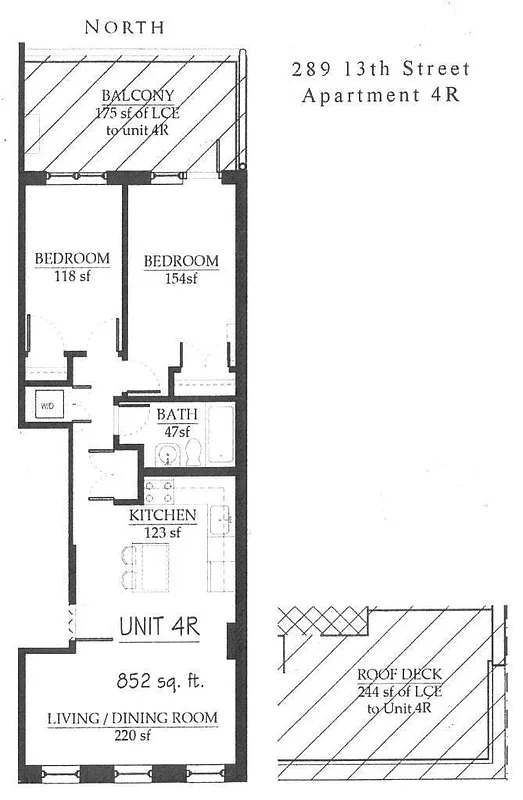
886 ft²
$49 per ft²
4 rooms
2 beds
1 bath
Condo
- Park Slope
Under NYC law, you can't be charged a broker fee if you didn't hire a broker.
Listed By
This home has been saved by 16 users.
Listing by Corcoran, Limited Liability Broker, 524 Broadway, New York, NY 10012 | Brokerage Listing ID: 3656817
Unavailable
Rented on 4/7/2016
Days on market
18 days
Last price change
No changes
About
Worship the sun in this new condo building, top floor unit. Two bedrooms, full bath, Electrolux stacked washer and dryer, a terrace off the master AND your own roof deck with views of Manhattan and the harbor. Unit faces North and South and gets light all day. The open kitchen features a GE Cafe Series dishwasher, 5 burner gas range, french door refrigerator, built-in microwave, and a wine rack for your pinots and cabs.
Policies
Sorry, policy info isn’t available right now. Check back later.
Home features
Private outdoor space
Terrace
Washer/dryer
Building amenities
No info on building amenities
About the building
289 13th Street
289 13th Street, Brooklyn, NY 11215
8 units
4 stories
2015 built
Property history
Prices shown are base rent only. For total monthly price and additional fees, see .
| Date | Base rent | Event |
|---|---|---|
8/9/2017 | $3,650 | Rented by Corcoran |
4/7/2016 | $3,650 | No longer available |
3/20/2016 | $3,650 | Listed by Corcoran |
Past listing photos
Sign in to take a closer look at how this home compares to similar homes.
Explore Park Slope
Transit
| Location | Distance |
|---|---|
Fat 4th Av | 0.26 miles |
FGRat 9th St | 0.27 miles |
Fat 7th Av | 0.29 miles |
Rat Prospect Av | 0.3 miles |
Fat Prospect Park–15 St | 0.53 miles |
About Park Slope
Rental prices shown are base rent before any fees. Visit listings for cost and fees breakdown.
SalesMedian asking price
2 beds
$1.5M
RentalsMedian asking base rent
2 beds
$4,750
Park Slope has a tranquil, easygoing vibe and can almost feel suburban. Strollers and children of all ages are a constant presence on sidewalks, as are shoppers patronizing local boutiques and dog walkers heading up to the park. Residents are Brooklynites through and through and tend to be socially conscious, artistically minded, and committed to their community. At night, a casual restaurant scene comes alive. For anyone looking for a night out, there are plenty of beer gardens and wine bars to patronize, especially in the South Slope, but don't go looking for dance clubs.
Learn more about Park SlopeSimilar homes
Prices shown are base rent only and don't include any fees. Visit each listing to see a complete cost breakdown.
Similar Homes looks at ad spend and other factors like location, price, and number of beds and baths.

































































