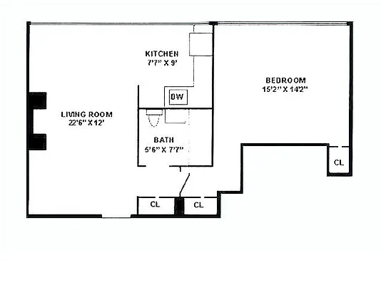
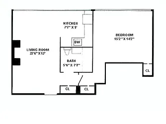
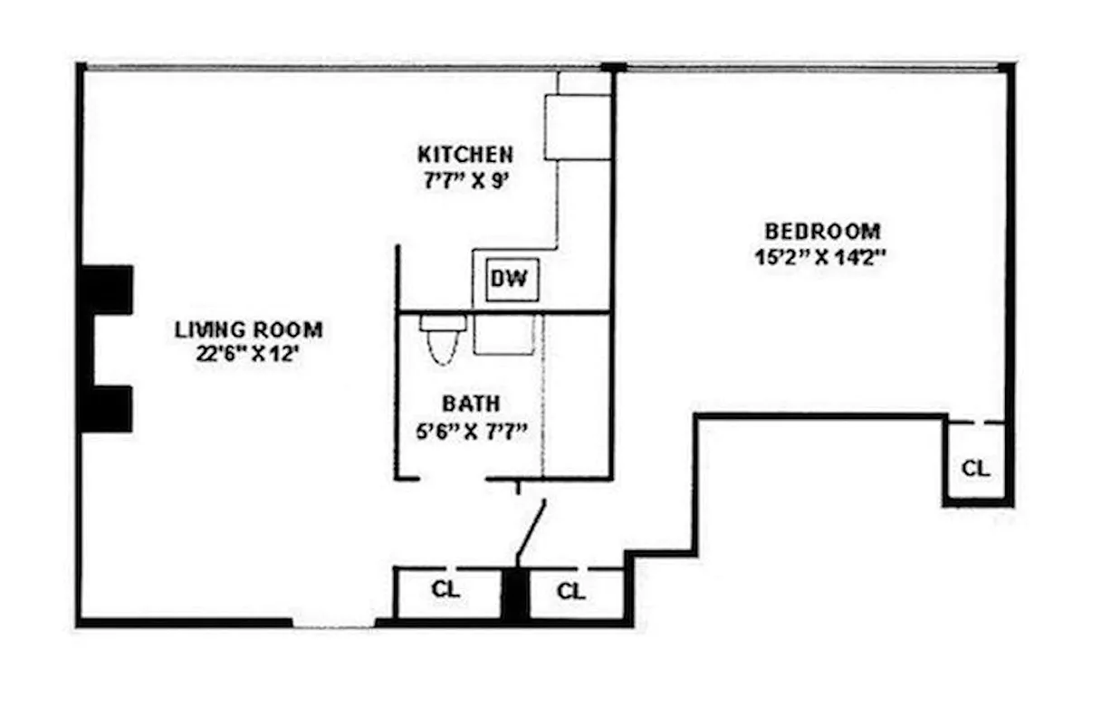
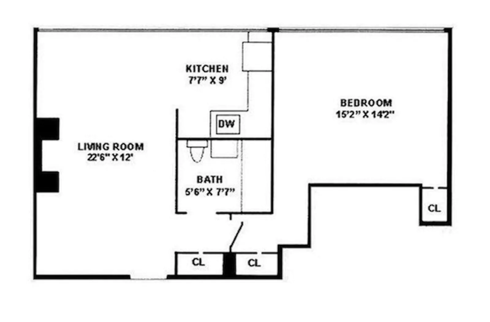
668 ft²
$1,017 per ft²
3 rooms
1 bed
1 bath
Condo
- Yorkville
Resale
recorded sale
Sold on 10/20/2025
Verified by closing records
Last listed for $720,000
Seller's agent
This home has been saved by 33 users.
Listing by Brown Harris Stevens, Real Estate Principal Office, 445 Park Avenue, New York, NY 10022
Common charges
$922/mo
Estimated payment
$5,314/mo
Legal disclaimerAll calculations are estimates provided by StreetEasy for informational purposes only. Actual amounts or financing terms may vary. Please contact your mortgage provider for specifics.Taxes
$845/mo
Tax abatement
No info
About
Seller’s agent
description
Exceptional Value & Open City Views - Don't Miss This Opportunity!
If you're searching for something special, look no further. This one-bedroom condominium offers incredible value with low carrying costs and a tenant in place through the end of September, making it ideal for investors or future end-users.
Enjoy unobstructed city views and abundant natural light streaming through a wall of oversized north-facing windows.
Policies
Pets allowed
Cats and dogs allowed
Home features
Fireplace
Wood
View
City
Building amenities
Services and facilities
Doorman
Part-time
Elevator
Wellness and recreation
No info on wellness and recreation
Shared outdoor space
No info on shared outdoor space
About the building
300 East 90th Street
300 East 90th Street, New York, NY 10128
31 units
10 stories
1987 built
For sale
0 available units for saleFor rent
0 available units for rentDocuments and permits
View documents and permitsProperty history
- Price Change: No changes
- Days on market: 42 daysThis is the number of days the listing has been on StreetEasy.
| Date | Price | Event |
|---|---|---|
10/20/2025 | $680,000 | Sold by Brown Harris Stevens |
6/25/2025 | $720,000 | In contract |
5/14/2025 | $720,000 | Listed by Brown Harris Stevens |
6/10/2024 | $700,000 | |
3/5/2024 | $700,000 | Price decreased by 7% |
Past listing photos
Sign in to take a closer look at how this home compares to similar homes.
Explore Yorkville
Transit
| Location | Distance |
|---|---|
Qat 86th St | 0.18 miles |
Qat 96th St | 0.21 miles |
456at 86th St | 0.3 miles |
6at 96th St | 0.38 miles |
6at 77th St | 0.69 miles |
About Yorkville
Rental prices shown are base rent before any fees. Visit listings for cost and fees breakdown.
SalesMedian asking price
1 bed
$699K
RentalsMedian asking base rent
1 bed
$4,125
When George Washington commandeered the building site that would eventually become Gracie Mansion, he probably didn't imagine that this peaceful, riverside enclave would become the lively residential neighborhood it is today. Between then and now, Yorkville has seen a lot of change. Tony mansions and elevated trains went up at the turn of the century and then came down in the postwar years as a middle-class population moved in.
Now, the neighborhood is a haven of high-rise co-ops and condos interspersed with quiet rows of townhouses. The mixed housing stock makes Yorkville a practical choice for anyone seeking a slowed-down Manhattan vibe. Several avenues over from the throngs of Lexington and Third Avenues, Yorkville maintains a low-key, no-frills feel — it's a place where you'll find more diners and donut shops than upscale lounges and boutiques. This homey attitude is writ in its storefronts, where the food is kept simple and the owners are often from around the block.








































































































































