$1,599,999
For Sale
No longer available 6/6/2025
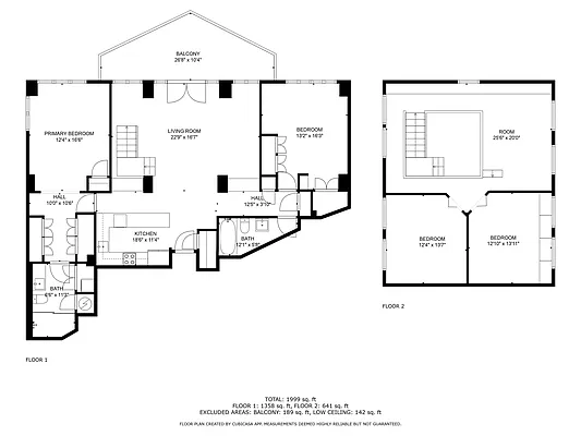
2,200 ft²
$727 per ft²
2 rooms
4 beds
2 baths
Condo
- Hoboken
Seller's agent
Jason Hunter
Hunter Homes, LLC
This home has been saved by 30 users.
Listing by Hunter Homes, LLC | MLS #: 250010840
Common charges
$677/mo
Estimated payment
$8,979/mo
Legal disclaimerAll calculations are estimates provided by StreetEasy for informational purposes only. Actual amounts or financing terms may vary. Please contact your mortgage provider for specifics.Taxes
No info
Tax abatement
No info
About
Seller’s agent
description
Calling All Investors! Beautiful penthouse unit located in a prime downtown location of Hoboken. Lots of light and very high ceilings. Views of NYC. Over 2100 squ feet with 4 bedrooms and 2 full baths complete this unique lofted space. Great separation which makes you feel like you are living in a house. Washer and dryer in the unit and 1 parking space comes with the condominium.
Policies
Sorry, policy info isn’t available right now. Check back later.
Home features
Dishwasher
Private outdoor space
Terrace
Washer/dryer
Building amenities
Services and facilities
No info on services and facilities
Wellness and recreation
Gym
Shared outdoor space
No info on shared outdoor space
About the building
300 Newark Street
300 Newark Street, Hoboken, NJ 07030
99 units
8 stories
1985 built
Property history
- Price Change: ↓ $200,000 (-11.1%) on 5/30/25
- Days on market: 6 daysThis is the number of days the listing has been on StreetEasy.
| Date | Price | Event |
|---|---|---|
6/6/2025 | $1,599,999 | No longer available |
5/30/2025 | $1,599,999 | Price decreased by 11% |
5/30/2025 | $1,799,999 | |
5/5/2025 | $1,799,999 | Price increased by 13% |
5/5/2025 | $1,599,999 | Price decreased by 14% |
Past listing photos
Sign in to take a closer look at how this home compares to similar homes.
Explore Hoboken
Transit
| Location | Distance |
|---|---|
HBLRPATHat Hoboken Terminal | 0.39 miles |
HBLRat 2nd Street | 0.5 miles |
PATHat Pavonia/Newport Station | 0.75 miles |
HBLRat 9th Street/Congress St | 0.81 miles |
HBLRat Harborside | 1.29 miles |


























































































































































































































