View this home virtually
- ft²
1 room
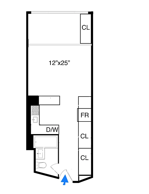
Studio
1 bath
Co-op
- Lenox Hill
Resale
recorded sale
Sold on 6/11/2025
Verified by closing records
Last listed for $385,000
Seller's agent
This home has been saved by 116 users.
Listing by The Gonzalez Property Group LLC, Real Estate Principal Office, 260 Madison Avenue, New York, NY 10016
Maintenance fees
$957/mo
Estimated payment
$2,904/mo
Legal disclaimerAll calculations are estimates provided by StreetEasy for informational purposes only. Actual amounts or financing terms may vary. Please contact your mortgage provider for specifics.Taxes
Included in maintenance fees
Tax abatement
No info
About
Seller’s agent
Buyer’s agent
description
Welcome home to this charming studio in a great location on the UES!
Incredible, ample and charming storage cabinetry!
Please call for an appointment to view.
South facing quiet studio in a well maintained five-story elevator building on a tree lined street. With a central laundry room on-site, live-in superintendent and Incredibly low maintenance of $957.
Policies
Co-purchase allowed
Gifts allowed
Guarantors accepted
Parents buying allowed
Pied-a-terre allowed
Sublets allowed
Home features
Dishwasher
Hardwood floors
View
Garden
Building amenities
Services and facilities
Elevator
Laundry in building
Live-in super
Wellness and recreation
No info on wellness and recreation
Shared outdoor space
Courtyard
About the building
304 East 73rd Street
304 East 73rd Street, New York, NY 10021
40 units
5 stories
1910 built
For sale
0 available units for saleFor rent
0 available units for rentDocuments and permits
View documents and permitsProperty history
- Price Change: ↓ $14,000 (-3.5%) on 10/13/24
- Days on market: 217 daysThis is the number of days the listing has been on StreetEasy.
| Date | Price | Event |
|---|---|---|
6/11/2025 | $380,000 | Sold by The Gonzalez Property Group LLC |
3/28/2025 | $385,000 | In contract |
10/13/2024 | $385,000 | Price decreased by 4% |
8/23/2024 | $399,000 | Listed by The Gonzalez Property Group LLC |
6/18/2024 | $375,000 |
Past listing photos
Sign in to take a closer look at how this home compares to similar homes.
Explore Lenox Hill
Transit
| Location | Distance |
|---|---|
Qat 72nd St | under 500 feet |
6at 77th St | 0.33 miles |
6at 68th St–Hunter College | 0.35 miles |
Qat 86th St | 0.55 miles |
FQat Lexington Av/63rd St | 0.55 miles |




























































