$3,200,000
For Sale
Delisted 2/27/2023
- ft²
14 rooms
6 beds
4 baths
Multifamily home
- South Harlem
Resale
Seller's agents
This home has been saved by 36 users.
Listing by Brown Harris Stevens, Real Estate Principal Office, 96 Main Street P O Box, Sag Harbor, NY 11963
Common charges
Not applicable
Estimated payment
$17,681/mo
Taxes
No info
Tax abatement
No info
About
Seller’s agent
description
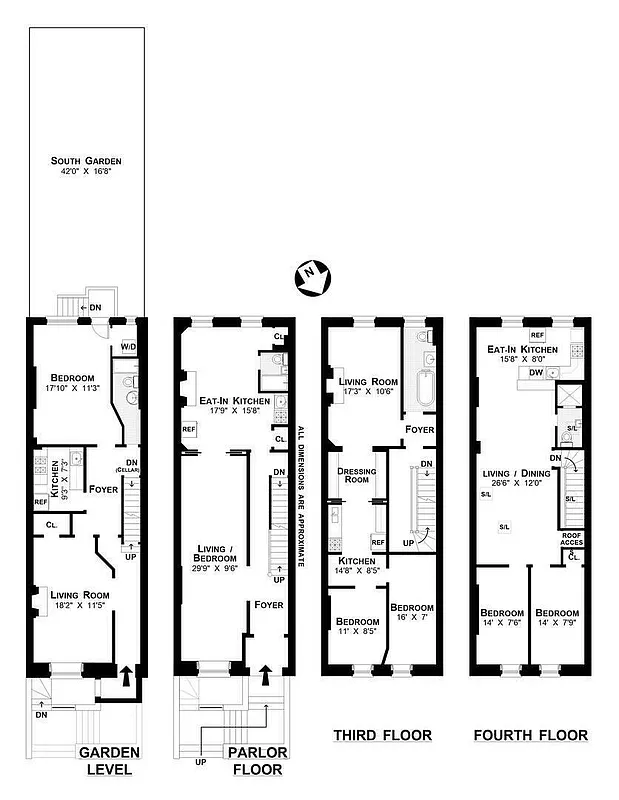
West Harlem Townhouse Beauty
A historic turn of the century West Harlem Townhouse with amazingly low taxes of just $336 per month awaits! This beautifully renovated 17-wide four-family home has four market-rate floor-thru apartments, three with washer dryers, and all with lovely pre-war details. Keep it as a smart income-producing investment, convert it to a fabulous one-family, or create an owner's duplex with a serene garden and rent out the top two floors.
Policies
Sorry, policy info isn’t available right now. Check back later.
Home features
No info on home features
Building amenities
No info on building amenities
About the building
312 West 115th Street
312 West 115th Street, New York, NY 10026
4 units
4 stories
1900 built
For sale
0 available units for saleFor rent
0 available units for rentDocuments and permits
View documents and permitsProperty history
- Price Change: No changes
- Days on market: 230 days
| Date | Price | Event |
|---|---|---|
2/27/2023 | $3,200,000 | Delisted by Brown Harris Stevens |
7/12/2022 | $3,200,000 | Listed by Brown Harris Stevens |
Sign in to take a closer look at how this home compares to similar homes.
Explore South Harlem
Transit
| Location | Distance |
|---|---|
BCat 116th St | under 500 feet |
BCat Cathedral Parkway–110th St | 0.22 miles |
23at 116th St | 0.38 miles |
23at 110th St–Central Park North | 0.41 miles |
1at 116th St–Columbia University | 0.46 miles |










































































































































