- ft²
2 rooms
1 bed
1 bath
Co-op
- Lenox Hill
Resale
recorded sale
Sold on 6/27/2025
Verified by closing records
Last listed for $565,000
Seller's agent
This home has been saved by 120 users.
Listing by Brown Harris Stevens, Real Estate Principal Office, 1934 Broadway, New York, NY 10023
Maintenance fees
$1,481/mo
Estimated payment
$4,159/mo
Legal disclaimerAll calculations are estimates provided by StreetEasy for informational purposes only. Actual amounts or financing terms may vary. Please contact your mortgage provider for specifics.Taxes
Included in maintenance fees
Tax abatement
No info
About
Seller’s agent
Buyer’s agent
description
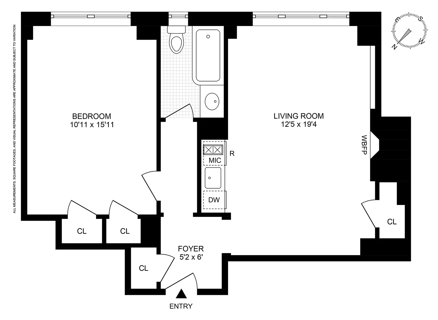
Welcome to this beautiful pre-war home at 315 East 68th Street. With approximately 640 square-feet of living space, this beautifully maintained one-bed, one-bath unit has been updated with modern touches that accentuate the charm of the apartment's 1930s interior architecture.
Unit 2N maintains its original pre-war floorplan, with the entry foyer separating the apartments bedroom and bathroom from the main living space.
Policies
Co-purchase allowed
Guarantors accepted
Parents buying allowed
Pets allowed
Cats and dogs allowed
Pied-a-terre allowed
Home features
Dishwasher
Fireplace
Wood
Hardwood floors
View
Garden
Building amenities
Services and facilities
Bike room
Doorman
Full-time
Elevator
Laundry in building
Live-in super
Package room
Storage space
Locker/cage
Wellness and recreation
Gym
Shared outdoor space
Roof deck
About the building
315 East 68th Street
315 East 68th Street, New York, NY 10065
289 units
17 stories
1931 built
For sale
4 available units for saleFor rent
0 available units for rentDocuments and permits
View documents and permitsProperty history
- Price Change: No changes
- Days on market: 60 daysThis is the number of days the listing has been on StreetEasy.
| Date | Price | Event |
|---|---|---|
6/27/2025 | $540,000 | Sold by Brown Harris Stevens |
4/7/2025 | $565,000 | In contract |
2/6/2025 | $565,000 | Listed by Brown Harris Stevens |
4/29/2024 | $535,000 | |
3/15/2024 | $535,000 |
Past listing photos
Sign in to take a closer look at how this home compares to similar homes.
Explore Lenox Hill
Transit
| Location | Distance |
|---|---|
Qat 72nd St | under 500 feet |
6at 68th St–Hunter College | 0.26 miles |
FQat Lexington Av/63rd St | 0.37 miles |
NRW456at Lexington Av/59th St | 0.43 miles |
6at 77th St | 0.5 miles |








































































































