$5,250,000
for sale
No longer available 10/2/2014
- ft²
16 rooms
8 beds
4 baths
Condo
- Sutton Place
Seller's agent
Corcoran
This home has been saved by 21 users.
Listing by Corcoran, Limited Liability Broker | Brokerage Listing ID: 3290815
Common charges
No info
Estimated payment
$30,121/mo
Taxes
$3,516/mo
Tax abatement
No info
About
Seller’s agent
Description
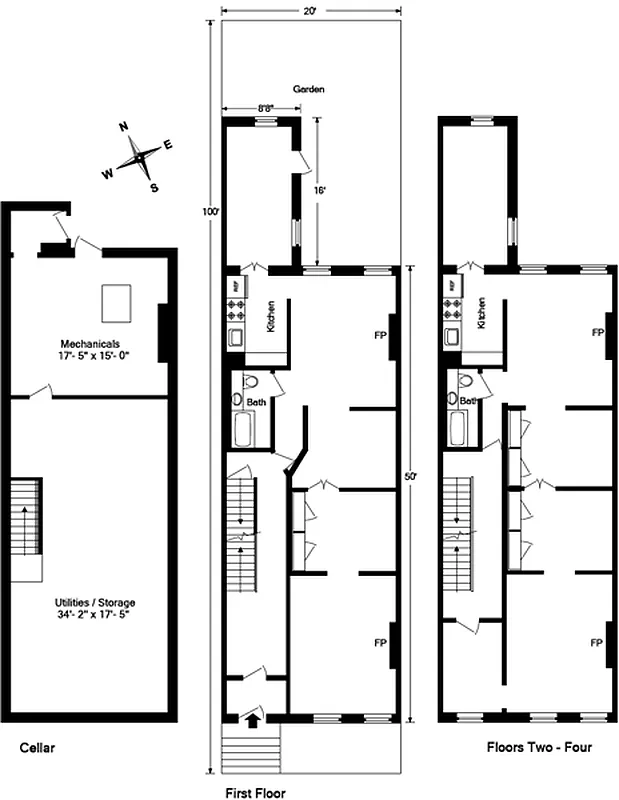
This charming late 19th Century, 20'-wide Townhouse is an Architectural Gem on a 100' lot. Built in the 1880's, this 4-story building offers approximately 5,000 sq feet of usable space and a large basement for storage and the possibility of an office or gym. Comprised of 4 apartments (three 2BRs and one 1BR) with classic appointments such as 8 fireplaces, high ceilings, detailed moldings, a front stoop and lovely ivy-covered rear garden with a country feel.
Policies
Sorry, policy info isn’t available right now. Check back later.
Home features
No info on home features
Building amenities
Services and facilities
Doorman
Virtual
Elevator
Package room
Storage space
Wellness and recreation
No info on wellness and recreation
Shared outdoor space
Roof deck
About the building
323 East 53rd Street
323 East 53rd Street, New York, NY 10022
11 units
6 stories
2022 built
For sale
0 available units for saleFor rent
0 available units for rentDocuments and permits
View documents and permitsProperty history
- Price Change: ↓ $250,000 (-4.5%) on 9/15/14
- Days on market: 135 days
| Date | Price | Event |
|---|---|---|
10/2/2014 | $5,250,000 | No longer available |
9/15/2014 | $5,250,000 | Price decreased by 5% |
7/24/2014 | $5,500,000 | Price decreased by 4% |
5/20/2014 | $5,750,000 | Listed by Corcoran |
6/12/2013 | $5,500,000 |
Sign in to take a closer look at how this home compares to similar homes.
Explore Sutton Place
Transit
| Location | Distance |
|---|---|
EM6at Lexington Av–53rd St | 0.18 miles |
EM6at 51st St | 0.29 miles |
NRW456at Lexington Av/59th St | 0.38 miles |
EMat 5th Av–53rd St | 0.47 miles |
LIRRat Grand Central | 0.5 miles |



























































































































































