- ft²
12 rooms
6 beds
3 baths
Three-family home
- Park Slope
reported sale
Sold on 10/18/2013
Not yet verified by closing records
Seller's agents
This home has been saved by 26 users.
Listing by Corcoran, Limited Liability Broker, 794 Union Street, Brooklyn, NY 11215 | Brokerage Listing ID: 2665247
Common charges
Not applicable
Estimated payment
$11,987/mo
Legal disclaimerAll calculations are estimates provided by StreetEasy for informational purposes only. Actual amounts or financing terms may vary. Please contact your mortgage provider for specifics.Taxes
$362/mo
Tax abatement
No info
About
Sellerâs agent
description
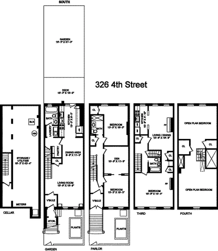
1st SHOWING WILL BE AT THE OPEN HOUSE SUNDAY THE 14TH. WELCOME to 326 4TH STREET. This lovely Dutch Revival brick w/terra cotta trim is filled with original charm and details and features a coveted double duplex layout with flexible possibilities. The garden-parlor duplex features a gorgeous SUNNY SOUTH FACING landscaped garden, updated galley kitchen complete with walk-in pantry, laundry great room area and 3 bedrooms and 2 full lovely baths.
Policies
Sorry, policy info isnât available right now. Check back later.
Home features
No info on home features
Building amenities
No info on building amenities
About the building
326 4th Street
326 4th Street, Brooklyn, NY 11215
3 units
3 stories
1899 built
For sale
0 available units for saleFor rent
0 available units for rentDocuments and permits
View documents and permitsProperty history
- Price Change: No changes
- Days on market: 22 daysThis is the number of days the listing has been on StreetEasy.
| Date | Price | Event |
|---|---|---|
10/18/2013 | $2,351,000 | |
10/18/2013 | $2,299,000 | Sold by Corcoran |
10/18/2013 | $2,299,000 | No longer available |
7/26/2013 | $2,299,000 | In contract |
7/4/2013 | $2,299,000 | Listed by Corcoran |
Past listing photos
Sign in to take a closer look at how this home compares to similar homes.
Explore Park Slope
Transit
| Location | Distance |
|---|---|
FGRat 9th St | 0.29 miles |
Fat 7th Av | 0.32 miles |
Fat 4th Av | 0.34 miles |
Rat Union St | 0.37 miles |
Rat Prospect Av | 0.67 miles |
About Park Slope
Rental prices shown are base rent before any fees. Visit listings for cost and fees breakdown.
SalesMedian asking price
6 beds
$4.65M
Park Slope has a tranquil, easygoing vibe and can almost feel suburban. Strollers and children of all ages are a constant presence on sidewalks, as are shoppers patronizing local boutiques and dog walkers heading up to the park. Residents are Brooklynites through and through and tend to be socially conscious, artistically minded, and committed to their community. At night, a casual restaurant scene comes alive. For anyone looking for a night out, there are plenty of beer gardens and wine bars to patronize, especially in the South Slope, but don't go looking for dance clubs.
Learn more about Park Slope






































































































































