$549,999
For Sale
In contract 11/11/2025
- ft²
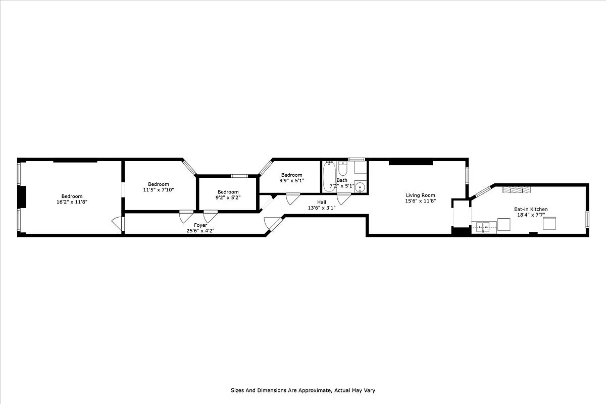
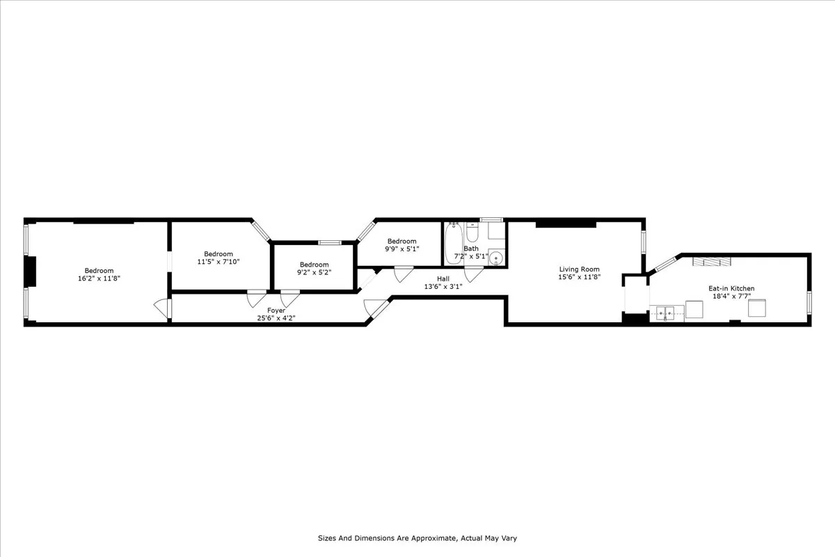
6 rooms
3 beds
1 bath
Co-op
- Chelsea
Restricted sale
This is a restricted sale. Buyer income limits apply.
This home has been saved by 256 users.
Listing by Compass, Corporate Broker, 110 Fifth Avenue, New York, NY 10011
Maintenance fees
$980/mo
Estimated payment
$3,816/mo
Legal disclaimerAll calculations are estimates provided by StreetEasy for informational purposes only. Actual amounts or financing terms may vary. Please contact your mortgage provider for specifics.Taxes
Included in maintenance fees
Tax abatement
No info
About
Seller’s agent
description
Welcome to 326 West 17th Street — an incredible HDFC opportunity in the heart of Chelsea, one of NYC’s most sought-after neighborhoods. This is the cheapest 3-bedroom plus home office you’ll find in the area, offering unbeatable value in a prime location. Featuring north and south-facing exposures, hardwood floors, and washer/dryer hookups, this home is filled with natural light and ready for your personal touch.
Policies
Sorry, policy info isn’t available right now. Check back later.
Home features
Hardwood floors
View
City
Washer/dryer
Building amenities
No info on building amenities
About the building
326 West 17th Street
326 West 17th Street, New York, NY 10011
12 units
5 stories
1910 built
For sale
1 available units for saleFor rent
0 available units for rentDocuments and permits
View documents and permitsProperty history
- Price Change: ↓ $50,000 (-8.3%) on 10/17/25
- Days on market: 95 daysThis is the number of days the listing has been on StreetEasy.
| Date | Price | Event |
|---|---|---|
11/11/2025 | $549,999 | In contract |
10/17/2025 | $549,999 | Price decreased by 8% |
8/8/2025 | $599,999 | Listed by Compass |
12/20/2016 | $0 |
Sign in to take a closer look at how this home compares to similar homes.
Explore Chelsea
Transit
| Location | Distance |
|---|---|
ACELat 14th St | under 500 feet |
ACELat 8th Av | 0.15 miles |
1at 18th St | 0.23 miles |
FLM123at 14th St | 0.26 miles |
CEat 23rd St | 0.3 miles |
About Chelsea
Rental prices shown are base rent before any fees. Visit listings for cost and fees breakdown.
SalesMedian asking price
3 beds
$3.73M
RentalsMedian asking base rent
3 beds
$7,995
If you're looking for a staid, quiet place to live, Chelsea is not for you. Its thriving arts scene has always been a big draw for creative types. Not surprisingly, residents pay a high price to live in such a hip and happening part of Manhattan. The neighborhood has some of the most exclusive restaurants and bars in the city, and real estate prices are steep — especially for new condos along the High Line.
Slip down many of the side streets, however, and you're likely to find some beautiful and historic townhouses nestled gracefully within the neighborhood's hustle and bustle.













































































































































































































































