View this home virtually
- ft²
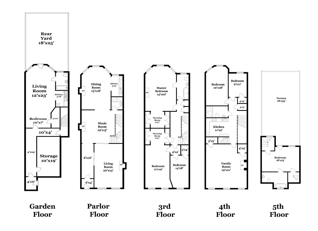
10 rooms
6 beds
4.5 baths
House
- Hamilton Heights
recorded sale
Sold on 7/9/2019
Verified by closing records
Last listed for $3,400,000
Seller's agent
This home has been saved by 66 users.
Listing by Corcoran, Limited Liability Broker, 372 West Broadway, New York, NY 10012 | Brokerage Listing ID: 5469895
Common charges
Not applicable
Estimated payment
$19,490/mo
Taxes
$704/mo
Tax abatement
No info
About
Seller’s agent
description
Finally! A historic townhouse on the Gold Coast Of Convent Avenue in Hamilton Heights is now available. This beautiful 20 foot wide five story townhouse is located on one of the most desirable blocks in Harlem. Designed by architect Adolph Hoak in 1890 this neo-Tudor style home is the definition of elegance. Experience suburb living in the city with a front and rear garden.
Policies
Sorry, policy info isn’t available right now. Check back later.
Home features
Dishwasher
Fireplace
Private outdoor space
Garden
Washer/dryer
Building amenities
Services and facilities
Laundry in building
Storage space
Wellness and recreation
No info on wellness and recreation
Shared outdoor space
No info on shared outdoor space
About the building
327 Convent Avenue
327 Convent Avenue, New York, NY 10031
1 unit
4 stories
1899 built
For sale
0 available units for saleFor rent
0 available units for rentDocuments and permits
View documents and permitsProperty history
- Price Change: ↓ $300,000 (-8.1%) on 7/29/18
- Days on market: 113 days
| Date | Price | Event |
|---|---|---|
12/23/2024 | $2,500,000 | |
11/8/2024 | $2,695,000 | |
6/7/2023 | $2,695,000 | |
4/12/2023 | $2,995,000 | |
10/20/2022 | $2,995,000 |
Past listing photos
Sign in to take a closer look at how this home compares to similar homes.
Explore Hamilton Heights
Transit
| Location | Distance |
|---|---|
ABCDat 145th St | under 500 feet |
1at 145th St | 0.27 miles |
BCat 135th St | 0.34 miles |
1at 137th St–City College | 0.4 miles |
3at Harlem–148th St | 0.51 miles |







































































































