600 ft²
$854 per ft²
3 rooms
1 bed
1 bath
Co-op
- Kips Bay
Resale
recorded sale
Sold on 9/22/2025
Verified by closing records
Last listed for $525,000
Seller's agents
This home has been saved by 61 users.
Listing by Brown Harris Stevens, Real Estate Principal Office, 100 Fifth Avenue, New York, NY 10011
Maintenance fees
$1,514/mo
Estimated payment
$4,333/mo
Taxes
Included in maintenance fees
Tax abatement
No info
About
Seller’s agent
Buyer’s agent
description
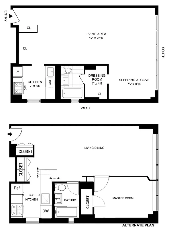
Spacious Corner Junior 1-Bedroom with Abundant Natural Light
This generously sized corner Junior 1-bedroom apartment boasts south and west exposures, ensuring bright and inviting spaces throughout the day. The expansive wall of five south -facing windows fills the living areas with sunlight.
Gourmet Kitchen and Modern Bath
The renovated, windowed chef's kitchen is equipped with black quartz countertops, a stone backsplash, custom light maple cabinetry, and stainless steel appliances.
Policies
Co-purchase allowed
Gifts allowed
Parents buying allowed
Pied-a-terre allowed
Sublets allowed
Home features
Dishwasher
View
City
Building amenities
Services and facilities
Bike room
Doorman
Full-time
Elevator
Laundry in building
Live-in super
Wellness and recreation
No info on wellness and recreation
Shared outdoor space
No info on shared outdoor space
About the building
330 3rd Avenue
330 3rd Avenue, New York, NY 10010
196 units
20 stories
1964 built
For sale
10 available units for saleFor rent
0 available units for rentDocuments and permits
View documents and permitsProperty history
- Price Change: No changes
- Days on market: 105 days
| Date | Price | Event |
|---|---|---|
9/22/2025 | $512,500 | Sold by Brown Harris Stevens |
6/20/2025 | $525,000 | In contract |
3/7/2025 | $525,000 | Listed by Brown Harris Stevens |
7/14/2023 | $550,000 | |
4/14/2023 | $550,000 |
Past listing photos
Sign in to take a closer look at how this home compares to similar homes.
Explore Kips Bay
Transit
| Location | Distance |
|---|---|
6at 23rd St | 0.17 miles |
6at 28th St | 0.23 miles |
RWat 23rd St | 0.33 miles |
6at 33rd St | 0.39 miles |
LNQRW456at 14th St–Union Square | 0.46 miles |
































































































