$3,495,000
For Sale
No longer available 4/9/2017
- ft²
11 rooms
6 beds
4 baths
Two-family home
- Park Slope
Seller's agents
This home has been saved by 42 users.
Listing by Halstead Real Estate, 160 Seventh Avenue, Brooklyn, NY 11215 | MLS #: 15459531
Common charges
Not applicable
Estimated payment
$18,135/mo
Legal disclaimerAll calculations are estimates provided by StreetEasy for informational purposes only. Actual amounts or financing terms may vary. Please contact your mortgage provider for specifics.Taxes
No info
Tax abatement
No info
About
Sellerâs agent
description
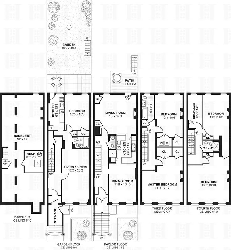
Contract Signed. This historic North Slope circa 1881 four story neo-grec brownstone has an interesting past. Located on Park Slope's Sportsmen's Row it once served as the temporary clubhouse for The Montauk Club, and the longtime residence of the noted surgeon John W. Diirkee.This fine home with many intact original architectural details is currently configured as an owners five-bedroom triplex with a garden rental.
Policies
Sorry, policy info isnât available right now. Check back later.
Home features
Private outdoor space
Garden, Patio
Building amenities
Services and facilities
Laundry in building
Wellness and recreation
No info on wellness and recreation
Shared outdoor space
Deck
About the building
34 8th Avenue
34 8th Avenue, Brooklyn, NY 11217
2 units
3 stories
1899 built
Property history
- Price Change: No changes
- Days on market: 90 daysThis is the number of days the listing has been on StreetEasy.
| Date | Price | Event |
|---|---|---|
1/27/2017 | $3,300,000 | |
4/9/2017 | $3,495,000 | No longer available |
12/7/2016 | $3,495,000 | In contract |
9/8/2016 | $3,495,000 | Listed by Halstead Real Estate |
Sign in to take a closer look at how this home compares to similar homes.
Explore Park Slope
Transit
| Location | Distance |
|---|---|
23at Grand Army Plaza | under 500 feet |
BQat 7th Av | 0.19 miles |
23at Bergen St | 0.44 miles |
23at Eastern ParkwayâBrooklyn Museum | 0.47 miles |
Rat Union St | 0.58 miles |
About Park Slope
Rental prices shown are base rent before any fees. Visit listings for cost and fees breakdown.
SalesMedian asking price
6 beds
$3.5M
Park Slope has a tranquil, easygoing vibe and can almost feel suburban. Strollers and children of all ages are a constant presence on sidewalks, as are shoppers patronizing local boutiques and dog walkers heading up to the park. Residents are Brooklynites through and through and tend to be socially conscious, artistically minded, and committed to their community. At night, a casual restaurant scene comes alive. For anyone looking for a night out, there are plenty of beer gardens and wine bars to patronize, especially in the South Slope, but don't go looking for dance clubs.
Learn more about Park Slope
































































































































































































