View this home virtually
- ft²
4 rooms
2 beds
2 baths
Condo
- Carroll Gardens
reported sale
Sold on 8/29/2018
Not yet verified by closing records
Seller's agents
This home has been saved by 296 users.
Listing by Halstead Real Estate, 111 5th Avenue, New York, NY 10003 | MLS #: 18587004
Common charges
$278/mo
Estimated payment
$5,951/mo
Legal disclaimerAll calculations are estimates provided by StreetEasy for informational purposes only. Actual amounts or financing terms may vary. Please contact your mortgage provider for specifics.Taxes
$71/mo
Tax abatement
No info
About
Seller’s agent
description
Contract Signed. 342 Bond Street, 3A
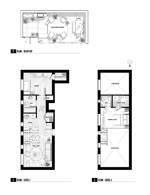
An Original Expression of Spectacular Living.
This bright, modern apartment with a private rooftop terrace provides the rare opportunity to enjoy a thoughtfully appointed, luxurious space designed by award-winning architects as their own home. Upon entrance, soaring 16-foot ceilings greet you in the open plan loft that incorporates kitchen, dining and living areas.
Policies
Pets allowed
Cats and dogs allowed
Home features
Central air
Dishwasher
Loft
Private outdoor space
Garden, Terrace
Washer/dryer
Building amenities
Services and facilities
Parking
Garage
Storage space
Wellness and recreation
No info on wellness and recreation
Shared outdoor space
Roof deck
About the building
342 Bond Street
342 Bond Street, Brooklyn, NY 11231
Complex:
The Satori34 units
3 stories
2009 built
For sale
0 available units for saleFor rent
0 available units for rentDocuments and permits
View documents and permitsProperty history
- Price Change: No changes
- Days on market: 32 daysThis is the number of days the listing has been on StreetEasy.
| Date | Price | Event |
|---|---|---|
9/17/2018 | $1,088,000 | Sold by Halstead Real Estate |
8/29/2018 | $1,088,000 | No longer available |
7/6/2018 | $1,088,000 | In contract |
6/4/2018 | $1,088,000 | Listed by Halstead Real Estate |
9/26/2009 | $469,000 |
Past listing photos
Sign in to take a closer look at how this home compares to similar homes.
Explore Carroll Gardens
Transit
| Location | Distance |
|---|---|
FGat Carroll St | 0.24 miles |
Rat Union St | 0.39 miles |
FGat Bergen St | 0.44 miles |
FGRat Smith–9th St | 0.48 miles |
FGRat 9th St | 0.6 miles |
About Carroll Gardens
Rental prices shown are base rent before any fees. Visit listings for cost and fees breakdown.
SalesMedian asking price
2 beds
$1.69M
RentalsMedian asking base rent
2 beds
$5,300
Carroll Gardens is at once the heart of old-school Brooklyn and a showcase for the borough's brownstone boom. The neighborhood has long been known for its red-sauce Italian joints and lively street life. But now, staples like Caputo's Bake Shop and Monteleone's Bakery and Café abut upscale stroller shops, yoga studios and fro-yo joints. Despite the newcomers, the neighborhood still feels like a small town, one of the few places where you might know your neighbors, your postman and your butcher by name.
Learn more about Carroll Gardens







































































































































