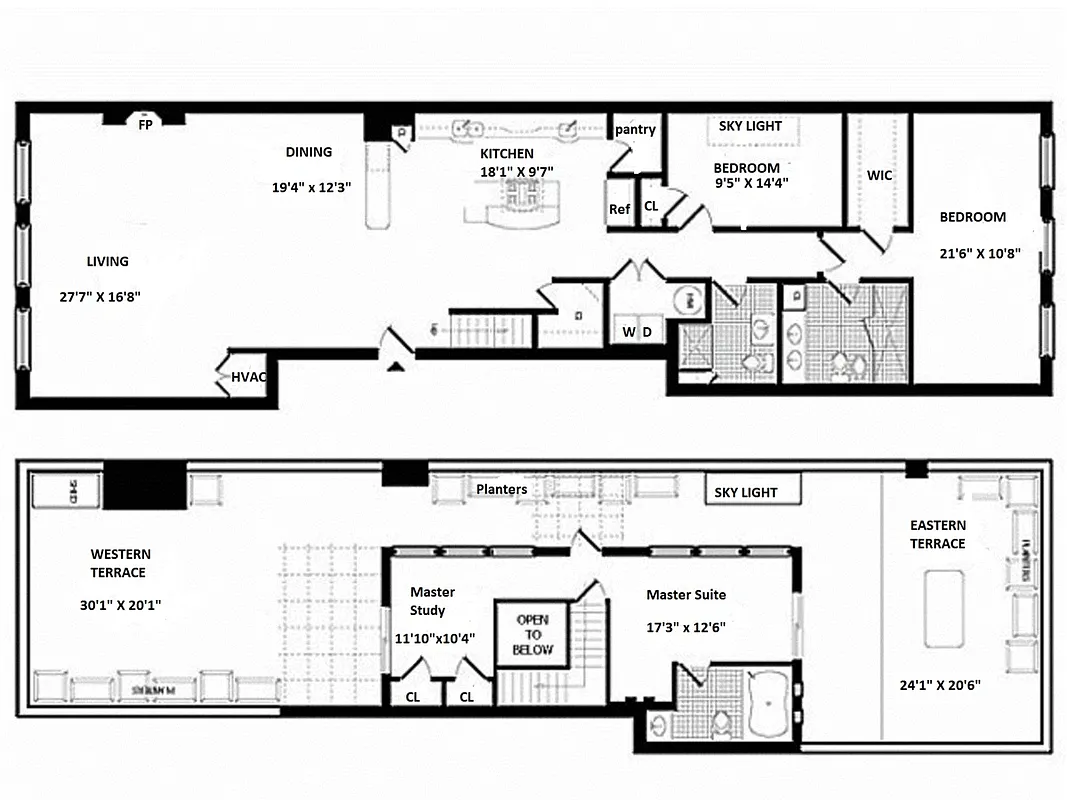
2,781 ft²
$2,193 per ft²
6 rooms
3 beds
3 baths
Condo
- Tribeca
Resale
recorded sale
Sold on 6/28/2017
Verified by closing records
Last listed for $5,995,000
Seller's agent
This home has been saved by 48 users.
Listing by Keller Williams NYC, Limited Liability Broker, 360 Madison Avenue, New York, NY 10017 | Brokerage Listing ID: 174213
Common charges
$2,156/mo
Estimated payment
$38,321/mo
Legal disclaimerAll calculations are estimates provided by StreetEasy for informational purposes only. Actual amounts or financing terms may vary. Please contact your mortgage provider for specifics.Taxes
$1,841/mo
Tax abatement
No info
About
Seller’s agent
description
*QUINTESSENTIAL TRIBECA PENTHOUSE LOFT WITH ROOF TERRACE* Everything you crave about Tribeca is housed under these soaring 13' ceilings. The palatial great room oozes downtown chic from its timber beamed ceilings to its exposed brick walls. Three enormous arched windows give you a front row seat to amazing sunset skies and the wood burning fireplace adds warmth to the sophisticated setting.
Policies
Sorry, policy info isn’t available right now. Check back later.
Home features
Dishwasher
Fireplace
Loft
Private outdoor space
Terrace
Washer/dryer
Building amenities
Services and facilities
Elevator
Storage space
Wellness and recreation
No info on wellness and recreation
Shared outdoor space
Deck
Roof deck
About the building
345 Greenwich Street
345 Greenwich Street, New York, NY 10013
10 units
6 stories
1920 built
For sale
2 available units for saleFor rent
0 available units for rentDocuments and permits
View documents and permitsProperty history
- Price Change: ↑ $45,000 (+0.7%) on 4/18/17
- Days on market: 21 daysThis is the number of days the listing has been on StreetEasy.
| Date | Price | Event |
|---|---|---|
6/28/2017 | $6,100,000 | Sold by Keller Williams NYC |
8/2/2017 | $5,995,000 | No longer available |
8/1/2017 | $5,995,000 | In contract |
5/9/2017 | $5,995,000 | In contract |
4/18/2017 | $5,995,000 | Price increased by 1% |
Past listing photos
Sign in to take a closer look at how this home compares to similar homes.
Explore Tribeca
Transit
| Location | Distance |
|---|---|
1at Franklin St | 0.16 miles |
123at Chambers St | 0.19 miles |
ACE23at Chambers St | 0.26 miles |
ACEat Canal St | 0.28 miles |
Eat World Trade Center | 0.35 miles |
About Tribeca
Rental prices shown are base rent before any fees. Visit listings for cost and fees breakdown.
SalesMedian asking price
3 beds
$5M
RentalsMedian asking base rent
3 beds
$19,995
Tribeca is an upscale neighborhood known for high-end real estate and well-heeled residents — a downtown haven for European cars and pedigreed dogs. It's also a truly gorgeous area that mixes glorious old cast-iron lofts, wide cobblestone streets, and dramatic new buildings. Decades ago, these lofts housed artists and squatters. But the bohemians have given way to cool-seekers with bigger bank accounts. Now, this neighborhood is among the most expensive places to live in the city. That hasn't cost the neighborhood much of its sophistication, though. Nightlife in Tribeca remains busy but refined, attracting a cosmopolitan crowd with an appreciation for the finer things in life.
Learn more about Tribeca
















































































































































































































