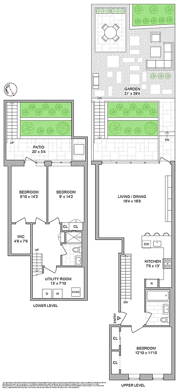
1,519 ft²
$1,662 per ft²
7 rooms
3 beds
2 baths
Condo
- Carroll Gardens
Resale
recorded sale
Sold on 6/27/2024
Verified by closing records
Last listed for $2,450,000
Seller's agents
This home has been saved by 111 users.
Listing by Compass, Corporate Broker, 110 5th Avenue, New York, NY 10011
Common charges
$829/mo
Estimated payment
$14,764/mo
Taxes
$398/mo
Tax abatement
421a expires in 2026
About
Seller’s agent
Buyer’s agent
description
A modern gem in Carroll Gardens! 348 Sackett Street Unit 1B is a spacious condo with exceptional indoor/outdoor living. Currently configured as a 3BR/2BA and with 1500+ sf spread out over two floors, this home wows with its dazzling natural sunlight and jaw-dropping garden vista from the living room’s enormous, south-facing wall of windows.
Policies
Sorry, policy info isn’t available right now. Check back later.
Home features
Central air
Dishwasher
Hardwood floors
Private outdoor space
Garden
View
Garden
Washer/dryer
Building amenities
Services and facilities
Elevator
Wellness and recreation
No info on wellness and recreation
Shared outdoor space
No info on shared outdoor space
About the building
348 Sackett Street
348 Sackett Street, Brooklyn, NY 11231
6 units
4 stories
2008 built
For sale
0 available units for saleFor rent
0 available units for rentDocuments and permits
View documents and permitsProperty history
- Price Change: No changes
- Days on market: 29 days
| Date | Price | Event |
|---|---|---|
6/27/2024 | $2,525,000 | Sold by Compass |
5/10/2024 | $2,450,000 | In contract |
4/11/2024 | $2,450,000 | Listed by Compass |
3/26/2010 | $1,160,000 | |
3/27/2010 | $1,175,000 |
Past listing photos
Sign in to take a closer look at how this home compares to similar homes.
Explore Carroll Gardens
Transit
| Location | Distance |
|---|---|
FGat Carroll St | under 500 feet |
FGat Bergen St | 0.27 miles |
FGRat Smith–9th St | 0.55 miles |
ACGat Hoyt & Schermerhorn | 0.64 miles |
Rat Union St | 0.67 miles |
About Carroll Gardens
Rental prices shown are base rent before any fees. Visit listings for cost and fees breakdown.
SalesMedian asking price
3 beds
$3.2M
RentalsMedian asking base rent
3 beds
$8,400
Carroll Gardens is at once the heart of old-school Brooklyn and a showcase for the borough's brownstone boom. The neighborhood has long been known for its red-sauce Italian joints and lively street life. But now, staples like Caputo's Bake Shop and Monteleone's Bakery and Café abut upscale stroller shops, yoga studios and fro-yo joints. Despite the newcomers, the neighborhood still feels like a small town, one of the few places where you might know your neighbors, your postman and your butcher by name.
Learn more about Carroll Gardens






























































































































