1,037 ft²
$1,075 per ft²
4 rooms
2 beds
1 bath
Condo
- Park Slope
recorded sale
Sold on 5/8/2015
Verified by closing records
Last listed for $1,070,000
Seller's agent
This home has been saved by 31 users.
Listing by Corcoran, Limited Liability Broker, 110 5th Avenue, New York, NY 10011 | Brokerage Listing ID: 3361507
Common charges
$327/mo
Estimated payment
$5,923/mo
Legal disclaimerAll calculations are estimates provided by StreetEasy for informational purposes only. Actual amounts or financing terms may vary. Please contact your mortgage provider for specifics.Taxes
$185/mo
Tax abatement
No info
About
Seller’s agent
Buyer’s agent
description
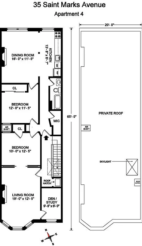
Sprawling and sunny top floor 2 bedroom (convertible 3) floor-through sponsor apartment in convenient northern Park Slope location with over 1,000 square feet of PRIVATE ROOF RIGHTS. Building footprint measures 20 by 65 in this very flexible home with north and south exposure. Original details include 2 decorative mantels, crown and baseboard moldings, hardwood floors, high ceilings, sliding glass pocket doors and built-ins.
Policies
Sorry, policy info isn’t available right now. Check back later.
Home features
Fireplace
Building amenities
No info on building amenities
About the building
35 Saint Mark's Avenue
35 Saint Mark'S Avenue, Brooklyn, NY 11217
4 units
4 stories
1920 built
For sale
0 available units for saleFor rent
0 available units for rentDocuments and permits
View documents and permitsProperty history
- Price Change: No changes
- Days on market: 30 daysThis is the number of days the listing has been on StreetEasy.
| Date | Price | Event |
|---|---|---|
5/8/2015 | $1,114,983 | Sold by Corcoran |
5/8/2015 | $1,070,000 | No longer available |
3/4/2015 | $1,070,000 | In contract |
2/2/2015 | $1,070,000 | Listed by Corcoran |
Past listing photos
Sign in to take a closer look at how this home compares to similar homes.
Explore Park Slope
Transit
| Location | Distance |
|---|---|
23at Bergen St | under 500 feet |
LIRRat Atlantic Terminal | 0.21 miles |
BDNQR2345at Atlantic Av–Barclays Ctr | 0.26 miles |
BQat 7th Av | 0.28 miles |
Cat Lafayette Av | 0.38 miles |
About Park Slope
Rental prices shown are base rent before any fees. Visit listings for cost and fees breakdown.
SalesMedian asking price
2 beds
$1.5M
RentalsMedian asking base rent
2 beds
$4,750
Park Slope has a tranquil, easygoing vibe and can almost feel suburban. Strollers and children of all ages are a constant presence on sidewalks, as are shoppers patronizing local boutiques and dog walkers heading up to the park. Residents are Brooklynites through and through and tend to be socially conscious, artistically minded, and committed to their community. At night, a casual restaurant scene comes alive. For anyone looking for a night out, there are plenty of beer gardens and wine bars to patronize, especially in the South Slope, but don't go looking for dance clubs.
Learn more about Park Slope


















































































































