View this home virtually
$4,500
For Rent
Base rent only. For total monthly price and additional fees, see .
Rented 3/27/2025
- ft²
5 rooms
2 beds
2 baths
Rental unit
- Hell's Kitchen
Under NYC law, you can't be charged a broker fee if you didn't hire a broker.
Listed By
C2R Management LLC
This home has been saved by 151 users.
Listing by C2R Management LLC
Unavailable
Rented on 3/27/2025
Days on market
24 days
Last price change
No changes
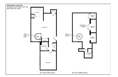
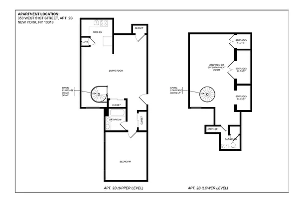
About
NO FEE DUPLEX APARTMENT located in PRIME midtown west location- 51 Street between 8th and 9th ave. This renovated two bedroom (queen size bed) features:
-kitchen with stainless steel appliances including a dishwasher.
-IN UNIT Washer/Dryer
- 2 large full baths
-Ample storage space throughout
‐ Plenty of Natural Light
‐ Hardwood Floor
‐ High Ceilings
-Heat & water is included
PET FRIENDLY UPON LANDLORD...
Policies
Sorry, policy info isn’t available right now. Check back later.
Home features
Dishwasher
Hardwood floors
Washer/dryer
Building amenities
Services and facilities
Laundry in building
Live-in super
Wellness and recreation
No info on wellness and recreation
Shared outdoor space
No info on shared outdoor space
About the building
353 West 51st Street
353 West 51st Street, New York, NY 10019
14 units
4 stories
1900 built
Property history
Prices shown are base rent only. For total monthly price and additional fees, see .
| Date | Base rent | Event |
|---|---|---|
3/27/2025 | $4,500 | Rented by C2R Management LLC |
3/3/2025 | $4,500 | Listed by C2R Management LLC |
Past listing photos
Sign in to take a closer look at how this home compares to similar homes.
Explore Hell's Kitchen
Transit
| Location | Distance |
|---|---|
CEat 50th St | 0.12 miles |
1at 50th St | 0.24 miles |
BDEat 7th Av | 0.26 miles |
ABCD1at 59th St–Columbus Circle | 0.28 miles |
NRWat 49th St | 0.3 miles |
Similar homes
Prices shown are base rent only and don't include any fees. Visit each listing to see a complete cost breakdown.
Similar Homes looks at ad spend and other factors like location, price, and number of beds and baths.


























































