$2,400
For Rent
Base rent only. For total monthly price and additional fees, see .
Rented 12/4/2025
- ft²
3 rooms
2 beds
1 bath
Two-family home
- Sunset Park
Under NYC law, you can't be charged a broker fee if you didn't hire a broker.
Listed By
This home has been saved by 50 users.
Listing by Century 21 Realty First, Real Estate Principal Office, 6806 18th Avenue, Brooklyn, NY 11204
Searching with a housing voucher, like Section 8?
Unavailable
Rented on 12/4/2025
Days on market
17 days
Last price change
No changes
About
Bright & cozy 2-Bedroom Apartment in the heart of Sunset Park.
Welcome home to this beautifully refreshed two-bedroom apartment in the heart of Sunset Park, blending classic Brooklyn charm with modern comfort.
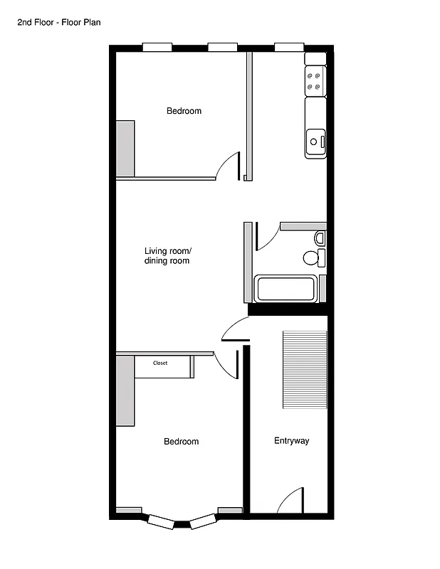
This second-floor residence features abundant natural light, high ceilings, and stylish new flooring throughout. The thoughtfully designed layout includes a large living area ideal for relaxing or entertaining, two bright bedrooms, and a clean, tiled bathroom.
Policies
Sorry, policy info isn’t available right now. Check back later.
Home features
No info on home features
Building amenities
No info on building amenities
About the building
361 52nd Street
361 52nd Street, Brooklyn, NY 11220
2 units
2 stories
1930 built
Property history
Prices shown are base rent only. For total monthly price and additional fees, see .
| Date | Base rent | Event |
|---|---|---|
12/4/2025 | $2,400 | Rented by Century 21 Realty First |
12/2/2025 | $2,400 | Listed by Century 21 Realty First |
11/18/2025 | $2,400 | |
11/3/2025 | $2,400 | |
1/7/2021 | $1,795 |
Past listing photos
Sign in to take a closer look at how this home compares to similar homes.
Explore Sunset Park
Transit
| Location | Distance |
|---|---|
Rat 53rd St | under 500 feet |
Rat 45th St | 0.34 miles |
NRWat 5th Av/59th St | 0.34 miles |
NRat 36th St | 0.78 miles |
Nat 8th Av | 0.8 miles |
About Sunset Park
Rental prices shown are base rent before any fees. Visit listings for cost and fees breakdown.
SalesMedian asking price
2 beds
$644.5K
RentalsMedian asking base rent
2 beds
$2,825
Tucked between Park Slope and Bay Ridge, Sunset Park is a bit of a hike from Manhattan and Downtown Brooklyn. Relative obscurity has kept rents low for decades, although that appears to be slowly changing as brownstone families are priced out of Park Slope and Carroll Gardens. A new hipster wave is beginning here: Industry City, a cluster of 16 warehouses on cobblestone streets, now hosts Smorgasburg, The Brooklyn Flea, and Mister Sunday, a day dance party in the summer. The galleries, tech conferences, rooftop movie screenings, and countless artisan shops in that complex are slowly putting Sunset Park on the map for young people.
Learn more about Sunset ParkSimilar homes
Prices shown are base rent only and don't include any fees. Visit each listing to see a complete cost breakdown.
Similar Homes looks at ad spend and other factors like location, price, and number of beds and baths.

















































































