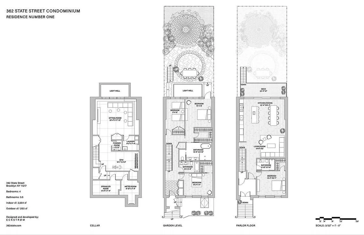
3,554 ft²
$1,477 per ft²
10 rooms
4 beds
3.5 baths
Three-family home
- Boerum Hill
Sponsor unit
Sponsor unitA unit being sold for the first time. It’s typically owned by the building. For condos, this is often the developer. For co-ops, this is often the building’s original owner before it went co-op.
recorded sale
Sold on 3/7/2024
Verified by closing records
Last listed for $5,250,000
Seller's agent
This home has been saved by 50 users.
Listing by Park Property Advisors, Corporate Broker, 77 Sands Street, Brooklyn, NY 11201
Common charges
Not applicable
Estimated payment
$28,266/mo
Legal disclaimerAll calculations are estimates provided by StreetEasy for informational purposes only. Actual amounts or financing terms may vary. Please contact your mortgage provider for specifics.Taxes
$978/mo
Tax abatement
No info
About
Seller’s agent
Buyer’s agent
description
A new townhouse conversion by ECKSTRØM NYC.
Located on one of the most beautiful blocks in Boerum Hill, the townhouse residences at 362 State Street provide the privacy and space of living in your own brownstone while enjoying the convenience of a move in ready, never lived in and fully gut renovated boutique two unit condominium.
Policies
Sorry, policy info isn’t available right now. Check back later.
Home features
Central air
Dishwasher
Hardwood floors
Private outdoor space
Garden, Terrace
View
City, Garden
Washer/dryer
Building amenities
Services and facilities
Doorman
Virtual
Laundry in building
Wellness and recreation
No info on wellness and recreation
Shared outdoor space
Courtyard
About the building
362 State Street
362 State Street, Brooklyn, NY 11217
3 units
4 stories
1901 built
For sale
0 available units for saleFor rent
0 available units for rentDocuments and permits
View documents and permitsProperty history
- Price Change: No changes
- Days on market: 15 daysThis is the number of days the listing has been on StreetEasy.
| Date | Price | Event |
|---|---|---|
3/7/2024 | $5,250,000 | Sold by Park Property Advisors |
7/12/2024 | $5,250,000 | No longer available |
4/12/2024 | $5,250,000 | Temporarily off market |
12/27/2023 | $5,250,000 | In contract |
12/12/2023 | $5,250,000 | Listed by Park Property Advisors |
Past listing photos
Sign in to take a closer look at how this home compares to similar homes.
Explore Boerum Hill
Transit
| Location | Distance |
|---|---|
ACGat Hoyt & Schermerhorn | under 500 feet |
23at Hoyt St | 0.17 miles |
BQRat DeKalb Av | 0.25 miles |
FGat Bergen St | 0.26 miles |
2345at Nevins St | 0.26 miles |
About Boerum Hill
Rental prices shown are base rent before any fees. Visit listings for cost and fees breakdown.
SalesMedian asking price
4 beds
$5.42M
Energetic and inviting, Boerum Hill continues its run as one of New York City's most desirable neighborhoods, all while remaining a secret quietly shared amongst its happy residents. Its appeal and vibrancy stem from its housing stock. Handsome Greek revival and Italianate townhouses line the wide, tree-lined streets. These beautiful brick and limestone buildings have long been a mecca for Brooklynites seeking an enclave close to Downtown Brooklyn and lower Manhattan — but far from crowds and highrises.
Main drags like Bergen Street, Atlantic Avenue, and Smith Street are peppered with charming boutiques like Collier West in addition to welcoming cafes, bars, and restaurants, including Rucola, French Louie, and Bacchus, to name a few. Fans of new construction will find new condo developments too. Saint Marks Place, The Hendrick, The Boerum, and The Bergen have expanded buyers' opportunities. Renters will also find plenty of options here in a broad range of prices, from the genuinely affordable to the luxurious.















































































































































































































































































