$3,725
For Rent
Base rent only. For total monthly price and additional fees, see .
Rented 7/30/2024
- ft²
1 room
1 bed
1 bath
Rental unit
- Park Slope
Under NYC law, you can't be charged a broker fee if you didn't hire a broker.
Listed By
This home has been saved by 490 users.
Listing by NOVO Living LLC, Real Estate Principal Office, 93 4th Avenue, New York, NY 10003
Unavailable
Rented on 7/30/2024
Days on market
40 days
Last price change
No changes
About
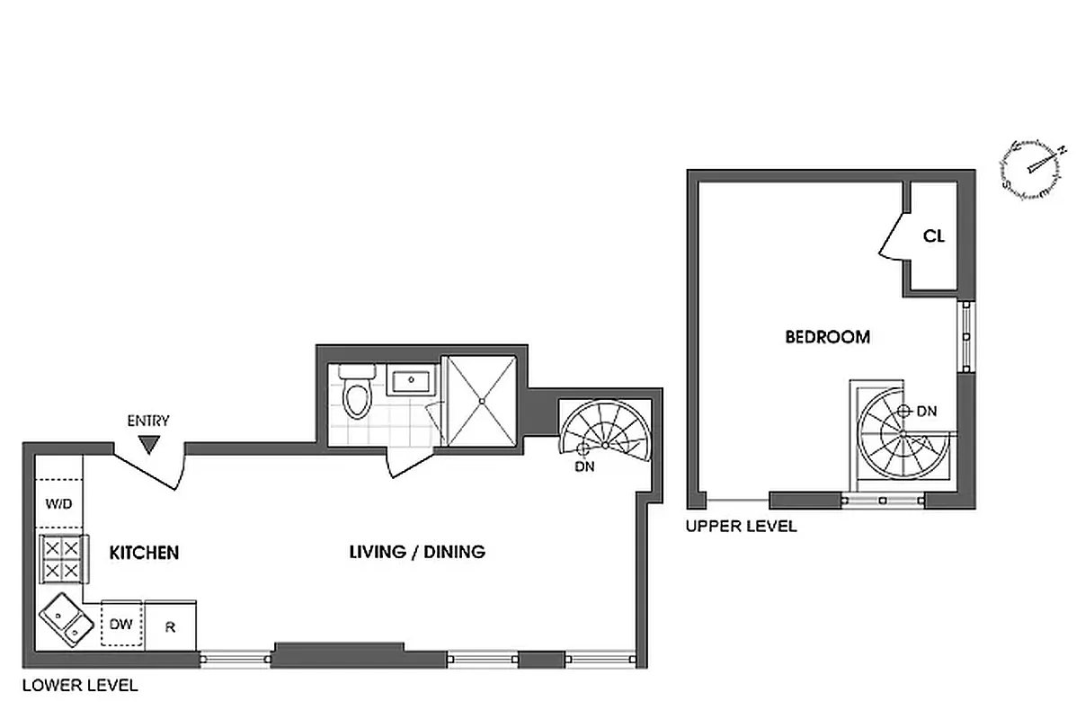
Renovated Loft-Style 1-Bedroom Duplex in Prime Park Slope
Discover urban tranquility in this spacious duplex 1-bedroom apartment located on picturesque 2nd Street in Park Slope. The main level features three beautiful round-arched windows that flood the open living and dining area with natural light. An open kitchen boasts stone countertops, a full-sized range, dishwasher, and full-size refrigerator.
Policies
Pets allowed
Home features
Dishwasher
Hardwood floors
Private outdoor space
Roof deck
View
City
Washer/dryer
Building amenities
No info on building amenities
About the building
372 2nd Street
372 2nd Street, Brooklyn, NY 11215
16 units
4 stories
1920 built
Property history
Prices shown are base rent only. For total monthly price and additional fees, see .
| Date | Base rent | Event |
|---|---|---|
7/30/2024 | $3,725 | Rented by NOVO Living LLC |
6/20/2024 | $3,725 | Listed by NOVO Living LLC |
6/5/2023 | $3,625 | |
5/4/2023 | $3,625 | |
6/11/2021 | $3,300 |
Past listing photos
Sign in to take a closer look at how this home compares to similar homes.
Explore Park Slope
Transit
| Location | Distance |
|---|---|
Rat Union St | 0.26 miles |
FGRat 9th St | 0.36 miles |
Fat 4th Av | 0.41 miles |
Fat 7th Av | 0.42 miles |
BQat 7th Av | 0.59 miles |
About Park Slope
Rental prices shown are base rent before any fees. Visit listings for cost and fees breakdown.
SalesMedian asking price
1 bed
$795K
RentalsMedian asking base rent
1 bed
$3,600
Park Slope has a tranquil, easygoing vibe and can almost feel suburban. Strollers and children of all ages are a constant presence on sidewalks, as are shoppers patronizing local boutiques and dog walkers heading up to the park. Residents are Brooklynites through and through and tend to be socially conscious, artistically minded, and committed to their community. At night, a casual restaurant scene comes alive. For anyone looking for a night out, there are plenty of beer gardens and wine bars to patronize, especially in the South Slope, but don't go looking for dance clubs.
Learn more about Park SlopeSimilar homes
Prices shown are base rent only and don't include any fees. Visit each listing to see a complete cost breakdown.
Similar Homes looks at ad spend and other factors like location, price, and number of beds and baths.
























































































































