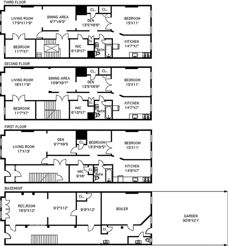
3,380 ft²
$532 per ft²
17 rooms
8 beds
3.5 baths
Three-family home
- Park Slope
Resale
reported sale
Sold on 10/2/2014
Not yet verified by closing records
Seller's agent
This home has been saved by 76 users.
Listing by Brown Harris Stevens, Real Estate Principal Office, 110 Fifth Avenue, New York, NY 10011 | MLS #: 9468148
Common charges
Not applicable
Estimated payment
$9,102/mo
Legal disclaimerAll calculations are estimates provided by StreetEasy for informational purposes only. Actual amounts or financing terms may vary. Please contact your mortgage provider for specifics.Taxes
No info
Tax abatement
No info
About
Seller’s agent
description
Investor Opportunity
Center Slope 3 Family 3 Story Brownstone and Brick Townhouse. Handsome, well-maintained and yielding 3,300 square feet of living space. It measures 20 x 55 and is built on a 100 foot lot. Each floor could be an ample 3 Bedroom Apartment with high ceilings, original moldings, French doors and are conducive to adding second Baths. First two floors to be delivered vacant, tenant on the top floor.
Policies
Sorry, policy info isn’t available right now. Check back later.
Home features
Private outdoor space
Garden
Building amenities
No info on building amenities
About the building
373 5th Street
373 5th Street, Brooklyn, NY 11215
3 units
3 stories
1899 built
For sale
0 available units for saleFor rent
0 available units for rentDocuments and permits
View documents and permitsProperty history
- Price Change: No changes
- Days on market: 66 daysThis is the number of days the listing has been on StreetEasy.
| Date | Price | Event |
|---|---|---|
3/19/2015 | $1,525,000 | |
4/7/2015 | $1,800,000 | Sold by Brown Harris Stevens |
10/2/2014 | $1,800,000 | No longer available |
7/28/2014 | $1,800,000 | Listed by Brown Harris Stevens |
3/12/2014 | $1,800,000 | No longer available |
Past listing photos
Sign in to take a closer look at how this home compares to similar homes.
Explore Park Slope
Transit
| Location | Distance |
|---|---|
Fat 7th Av | 0.28 miles |
FGRat 9th St | 0.3 miles |
Fat 4th Av | 0.35 miles |
Rat Union St | 0.41 miles |
Rat Prospect Av | 0.66 miles |
About Park Slope
Rental prices shown are base rent before any fees. Visit listings for cost and fees breakdown.
SalesMedian asking price
8 beds
$3.5M
Park Slope has a tranquil, easygoing vibe and can almost feel suburban. Strollers and children of all ages are a constant presence on sidewalks, as are shoppers patronizing local boutiques and dog walkers heading up to the park. Residents are Brooklynites through and through and tend to be socially conscious, artistically minded, and committed to their community. At night, a casual restaurant scene comes alive. For anyone looking for a night out, there are plenty of beer gardens and wine bars to patronize, especially in the South Slope, but don't go looking for dance clubs.
Learn more about Park Slope



































































































