$1,795,000
For Sale
In contract 11/11/2025
- ft²
5 rooms
2 beds
2 baths
Condo
- Park Slope
Sponsor unit
Sponsor unitA unit being sold for the first time. It’s typically owned by the building. For condos, this is often the developer. For co-ops, this is often the building’s original owner before it went co-op.
This home has been saved by 84 users.
Listing by Douglas Elliman, Limited Liability Broker, 187 Seventh Avenue, Brooklyn, NY 11215 | Brokerage Listing ID: 10853523
Common charges
$436/mo
Estimated payment
$11,047/mo
Legal disclaimerAll calculations are estimates provided by StreetEasy for informational purposes only. Actual amounts or financing terms may vary. Please contact your mortgage provider for specifics.Taxes
$267/mo
Tax abatement
No info
About
Seller’s agent
description
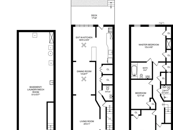
378 8th Street is an inspired townhouse-to-condo conversion redefining modern Brooklyn living. Nestled on a tree-lined street in the heart of Park Slope, the building captures the neighborhood’s historic charm while offering every modern convenience. Residence Two also includes a private storage closet in the basement.
Residence Two is a generously proportioned two-bedroom, two-bath home spread across a single, seamless level.
Policies
Sorry, policy info isn’t available right now. Check back later.
Home features
Central air
Dishwasher
Hardwood floors
Private outdoor space
Balcony
View
Garden
Washer/dryer
Building amenities
Services and facilities
Storage space
Locker/cage
Wellness and recreation
No info on wellness and recreation
Shared outdoor space
No info on shared outdoor space
About the building
378 8th Street
378 8th Street, Brooklyn, NY 11215
4 units
4 stories
1899 built
For sale
4 available units for saleFor rent
0 available units for rentDocuments and permits
View documents and permitsProperty history
- Price Change: No changes
- Days on market: 12 daysThis is the number of days the listing has been on StreetEasy.
| Date | Price | Event |
|---|---|---|
11/11/2025 | $1,795,000 | In contract |
10/30/2025 | $1,795,000 | Listed by Douglas Elliman |
Sign in to take a closer look at how this home compares to similar homes.
Explore Park Slope
Transit
| Location | Distance |
|---|---|
| under 500 feet |
| 0.36 miles |
| 0.39 miles |
| 0.47 miles |
| 0.57 miles |
About Park Slope
Rental prices shown are base rent before any fees. Visit listings for cost and fees breakdown.
SalesMedian asking price
2 beds
$1.47M
RentalsMedian asking base rent
2 beds
$4,500
Park Slope has a tranquil, easygoing vibe and can almost feel suburban. Strollers and children of all ages are a constant presence on sidewalks, as are shoppers patronizing local boutiques and dog walkers heading up to the park. Residents are Brooklynites through and through and tend to be socially conscious, artistically minded, and committed to their community. At night, a casual restaurant scene comes alive. For anyone looking for a night out, there are plenty of beer gardens and wine bars to patronize, especially in the South Slope, but don't go looking for dance clubs.
Learn more about Park Slope













































































