2,600 ft²
$767 per ft²
2 rooms
Studio
0 baths
Mixed-use building
- Red Hook
reported sale
Sold on 11/11/2013
Not yet verified by closing records
Seller's agents
Douglas Elliman
Douglas Elliman
This home has been saved by 12 users.
Listing by Douglas Elliman, Limited Liability Broker | Brokerage Listing ID: 1467729
Common charges
Not applicable
Estimated payment
$10,088/mo
Legal disclaimerAll calculations are estimates provided by StreetEasy for informational purposes only. Actual amounts or financing terms may vary. Please contact your mortgage provider for specifics.Taxes
No info
Tax abatement
No info
About
Seller’s agent
description
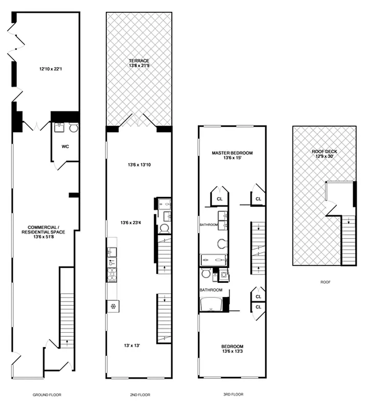
An incredible opportunity to own, reside and possibly work in this stunning, completely renovated 3-story townhouse with a second-floor terrace, roof deck and full basement in prime Red Hook. The ground level commercial unit would make an ideal space for any business whether a retail store, gallery, studio, salon or office, with tremendous income potential, or it could be incorporated with the duplex apartment upstairs to make a fabulous owner’s triplex.
Policies
Sorry, policy info isn’t available right now. Check back later.
Home features
Private outdoor space
Terrace
Building amenities
No info on building amenities
About the building
386 Van Brunt Street
386 Van Brunt Street, Brooklyn, NY 11231
2 units
3 stories
1915 built
For sale
0 available units for saleFor rent
0 available units for rentDocuments and permits
View documents and permitsProperty history
- Price Change: ↓ $155,000 (-7.2%) on 8/1/13
- Days on market: 179 daysThis is the number of days the listing has been on StreetEasy.
| Date | Price | Event |
|---|---|---|
7/18/2014 | $1,850,000 | |
11/22/2016 | $1,995,000 | Sold by Douglas Elliman |
11/11/2013 | $1,995,000 | No longer available |
8/1/2013 | $1,995,000 | Price decreased by 7% |
5/16/2013 | $2,150,000 | Listed by Douglas Elliman |
Past listing photos
Sign in to take a closer look at how this home compares to similar homes.
Explore Red Hook
Transit
| Location | Distance |
|---|---|
FGRat Smith–9th St | 0.86 miles |
FGat Carroll St | 0.95 miles |
FGat Bergen St | 1.31 miles |
Rat Prospect Av | 1.34 miles |
Fat 4th Av | 1.36 miles |
About Red Hook
Rental prices shown are base rent before any fees. Visit listings for cost and fees breakdown.
Dominated by looming shipping container cranes and former warehouses, Red Hook wears its rough-hewn industrial past on its sleeve. There's no denying it: Red Hook has had a gritty history, in large part exacerbated by its relative isolation from the rest of the city. Although getting to Red Hook remains tough and transportation options remain few, the neighborhood is becoming increasingly popular with artists, innovators and creative types. Those who come are rewarded by Red Hook's amazing sunsets and harbor views, its singular brand of rustic beauty, and its refreshing sense of undeveloped expanse.
Learn more about Red Hook






















































