$4,250
For Rent
Base rent only. For total monthly price and additional fees, see .
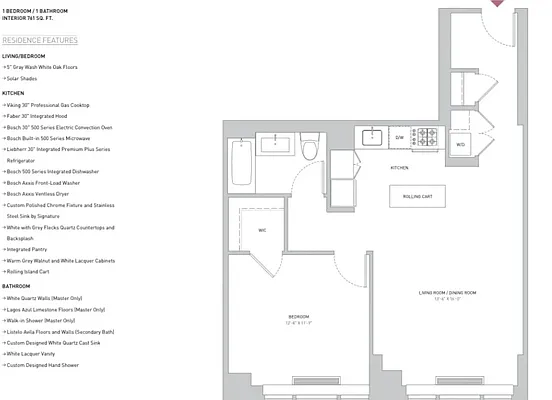
761 ft²
$67 per ft²
1 room
1 bed
1 bath
Condo
- Downtown Brooklyn
Under NYC law, you can't be charged a broker fee if you didn't hire a broker.
Listed By
This home has been saved by 16 users.
Listing by Krieger Real Estate LLC, Real Estate Principal Office, 146 Sullivan Street, New York, NY 10012
Available
12/12/2025
Days on market
23 days
Last price change
No changes
About
Luxurious, spacious, and serene one bedroom condo at 388 Bridge Street. With over 750 square feet of space, this apartment boasts an expansive living area with an open kitchen concept that includes a Liebherr refrigerator, Viking gas cooktop, and Bosch convection wall oven, white quartz countertops and backsplashes, custom fixtures, and a rolling island that provides flexibility on the kitchen's orientation.
Policies
Sorry, policy info isn’t available right now. Check back later.
Home features
Central air
Dishwasher
Hardwood floors
View
City
Washer/dryer
Building amenities
Services and facilities
Doorman
Elevator
Wellness and recreation
Children's playroom
Gym
Shared outdoor space
Deck
Roof deck
About the building
388 Bridge Street
388 Bridge Street, Brooklyn, NY 11201
378 units
54 stories
2013 built
Property history
Prices shown are base rent only. For total monthly price and additional fees, see .
| Date | Base rent | Event |
|---|---|---|
11/11/2025 | $4,250 | Listed by Krieger Real Estate LLC |
10/20/2022 | $3,700 | |
10/19/2022 | $3,700 | |
10/6/2022 | $3,700 | |
6/7/2018 | $3,350 |
Past listing photos
Sign in to take a closer look at how this home compares to similar homes.
Explore Downtown Brooklyn
Transit
| Location | Distance |
|---|---|
| under 500 feet |
| under 500 feet |
| 0.16 miles |
| 0.17 miles |
| 0.24 miles |
About Downtown Brooklyn
Rental prices shown are base rent before any fees. Visit listings for cost and fees breakdown.
SalesMedian asking price
1 bed
$945K
RentalsMedian asking base rent
1 bed
$4,350
Bisected by Flatbush Avenue and bordered by the BQE, Downtown Brooklyn is a rapidly expanding residential neighborhood. Easy subway access and abundant inventory have drawn many to the area looking for luxury rentals and condos in the area's numerous new apartment towers.
Historically, Downtown Brooklyn has been the hub of the borough's municipal activities with many civil service offices and court houses centered around Cadman Plaza, the neighborhood's main hub. With tons of city employees, lawyers and Brooklynites of all types constantly bustling about, Downtown Brooklyn has a decidedly hectic vibe. This, coupled with the area's lack of green space, makes Downtown Brooklyn most appealing to those who can embrace one of Brooklyn's busiest and most trafficked neighborhoods.
Similar homes
Prices shown are base rent only and don't include any fees. Visit each listing to see a complete cost breakdown.
Similar Homes looks at ad spend and other factors like location, price, and number of beds and baths.



















































































































