$3,350,000
For Sale
No longer available 6/30/2013
3,200 ft²
$1,046 per ft²
11 rooms
5 beds
4 baths
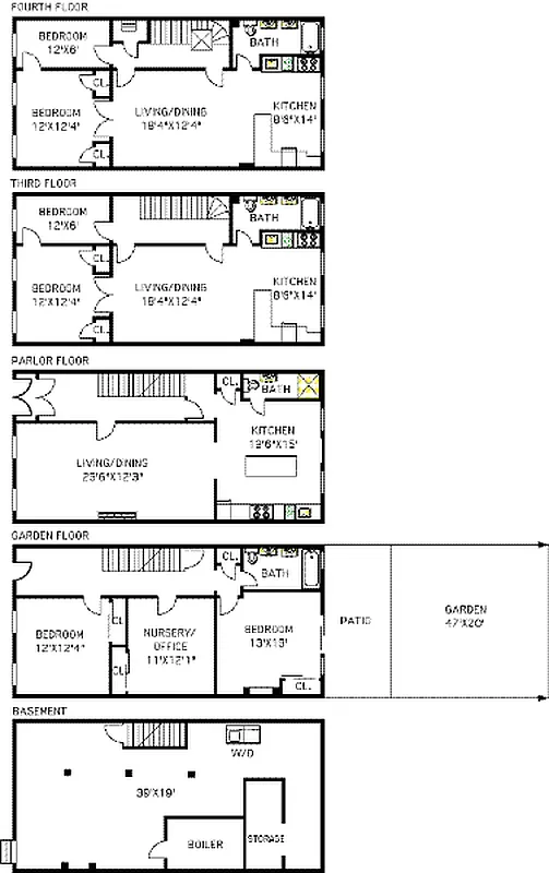
Three-family home
- Carroll Gardens
Restricted sale
Seller's agent
This home has been saved by 5 users.
Listing by Corcoran, Limited Liability Broker, 375 Schermerhorn Street, Brooklyn, NY 11217 | Brokerage Listing ID: 2606309
Common charges
Not applicable
Estimated payment
$17,435/mo
Legal disclaimerAll calculations are estimates provided by StreetEasy for informational purposes only. Actual amounts or financing terms may vary. Please contact your mortgage provider for specifics.Taxes
$496/mo
Tax abatement
No info
About
Seller’s agent
description
SHOWN BY APPOINTMENT ONLY. Truly lovely 20 foot wide townhouse on one of Carroll Gardens most bucolic blocks. A legal three family, this townhouse is arranged as two plus bedrooms/two bath duplex and two - one plus bedroom/one bath apartments; you can expand to create a triplex or maintain the current set-up for maximum income. In this home you will find the perfect mix of antiquity and modernity.
Policies
Sorry, policy info isn’t available right now. Check back later.
Home features
No info on home features
Building amenities
No info on building amenities
About the building
389 Sackett Street
389 Sackett Street, Brooklyn, NY 11231
3 units
3 stories
1900 built
For sale
0 available units for saleFor rent
0 available units for rentDocuments and permits
View documents and permitsProperty history
- Price Change: ↓ $150,000 (-4.3%) on 6/17/13
- Days on market: 37 daysThis is the number of days the listing has been on StreetEasy.
| Date | Price | Event |
|---|---|---|
6/30/2013 | $3,350,000 | No longer available |
6/17/2013 | $3,350,000 | Price decreased by 4% |
5/24/2013 | $3,500,000 | Listed by Corcoran |
1/11/2010 | $1,530,000 |
Sign in to take a closer look at how this home compares to similar homes.
Explore Carroll Gardens
Transit
| Location | Distance |
|---|---|
FGat Carroll St | 0.13 miles |
FGat Bergen St | 0.24 miles |
Rat Union St | 0.57 miles |
FGRat Smith–9th St | 0.58 miles |
ACGat Hoyt & Schermerhorn | 0.59 miles |
About Carroll Gardens
Rental prices shown are base rent before any fees. Visit listings for cost and fees breakdown.
SalesMedian asking price
5 beds
$4.75M
Carroll Gardens is at once the heart of old-school Brooklyn and a showcase for the borough's brownstone boom. The neighborhood has long been known for its red-sauce Italian joints and lively street life. But now, staples like Caputo's Bake Shop and Monteleone's Bakery and Café abut upscale stroller shops, yoga studios and fro-yo joints. Despite the newcomers, the neighborhood still feels like a small town, one of the few places where you might know your neighbors, your postman and your butcher by name.
Learn more about Carroll Gardens
























































































