- ft²
10 rooms
3 beds
2 baths
Two-family home
- Park Slope
recorded sale
Sold on 5/2/2011
Verified by closing records
Last listed for $1,775,000
Seller's agent
Brown Harris Stevens
This home has been saved by 4 users.
Listing by Brown Harris Stevens, Real Estate Principal Office | MLS #: 240947
Common charges
Not applicable
Estimated payment
$9,446/mo
Legal disclaimerAll calculations are estimates provided by StreetEasy for informational purposes only. Actual amounts or financing terms may vary. Please contact your mortgage provider for specifics.Taxes
$280/mo
Tax abatement
No info
About
Seller’s agent
description
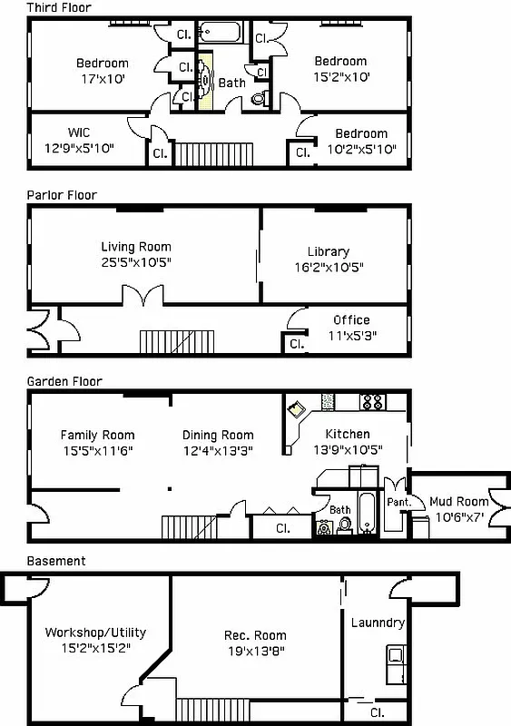
Finally - a lovely one-family house ready for you. The garden level has been completely renovated to offer a family room, dining area and open kitchen that leads to the garden. New cherry floors, custom lighting, a full bath, and loads of kitchen storage complete the picture. The parlor floor retains its graceful original details and sun floods in from the south windows.
Policies
Sorry, policy info isn’t available right now. Check back later.
Home features
Private outdoor space
Garden
Building amenities
Services and facilities
Laundry in building
Wellness and recreation
No info on wellness and recreation
Shared outdoor space
No info on shared outdoor space
About the building
395 7th Street
395 7th Street, Brooklyn, NY 11215
2 units
2 stories
1899 built
For sale
0 available units for saleFor rent
0 available units for rentDocuments and permits
View documents and permitsProperty history
- Price Change: No changes
- Days on market: 20 daysThis is the number of days the listing has been on StreetEasy.
| Date | Price | Event |
|---|---|---|
5/2/2011 | $1,850,000 | Sold by Brown Harris Stevens |
4/23/2011 | $1,775,000 | No longer available |
2/25/2011 | $1,775,000 | In contract |
1/27/2011 | $1,775,000 | Listed by Brown Harris Stevens |
Past listing photos
Sign in to take a closer look at how this home compares to similar homes.
Explore Park Slope
Transit
| Location | Distance |
|---|---|
Fat 7th Av | 0.19 miles |
FGRat 9th St | 0.28 miles |
Fat 4th Av | 0.32 miles |
Rat Union St | 0.51 miles |
Rat Prospect Av | 0.58 miles |
About Park Slope
Rental prices shown are base rent before any fees. Visit listings for cost and fees breakdown.
SalesMedian asking price
3 beds
$2.35M
RentalsMedian asking base rent
3 beds
$6,000
Park Slope has a tranquil, easygoing vibe and can almost feel suburban. Strollers and children of all ages are a constant presence on sidewalks, as are shoppers patronizing local boutiques and dog walkers heading up to the park. Residents are Brooklynites through and through and tend to be socially conscious, artistically minded, and committed to their community. At night, a casual restaurant scene comes alive. For anyone looking for a night out, there are plenty of beer gardens and wine bars to patronize, especially in the South Slope, but don't go looking for dance clubs.
Learn more about Park Slope


































































































































