$17,000
For Rent
Base rent only. For total monthly price and additional fees, see .
Rented 4/25/2016
- ft²
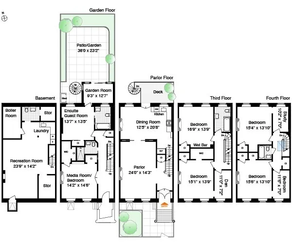
12 rooms
6 beds
4.5 baths
Two-family home
- Park Slope
Under NYC law, you can't be charged a broker fee if you didn't hire a broker.
Listed By
This home has been saved by 10 users.
Listing by Corcoran, Limited Liability Broker, 1 Pierrepont Plz, Brooklyn, NY 11201 | Brokerage Listing ID: 3634390
Unavailable
Rented on 4/25/2016
Days on market
78 days
Last price change
No changes
About
If you are looking to experience Park Slope Living at its Best - this is the townhouse for you! 397 Third Street is the quintessential Brownstone located on an absolutely gorgeous double wide, tree-lined block. This sun flooded and grand home is an impressive twenty two feet wide and was built circa 1899, offering all that is intrinsic in townhouse living: warmth, space and most importantly, comfort.
Policies
Sorry, policy info isnât available right now. Check back later.
Home features
Fireplace
Private outdoor space
Patio, Terrace
Washer/dryer
Building amenities
Services and facilities
Parking
Garage
Wellness and recreation
No info on wellness and recreation
Shared outdoor space
No info on shared outdoor space
About the building
397 3rd Street
397 3rd Street, Brooklyn, NY 11215
1 unit
3 stories
1899 built
For rent
0 available units for rentProperty history
Prices shown are base rent only. For total monthly price and additional fees, see .
| Date | Base rent | Event |
|---|---|---|
10/25/2016 | $17,000 | Rented by Corcoran |
4/25/2016 | $17,000 | No longer available |
2/7/2016 | $17,000 | Listed by Corcoran |
4/5/2014 | $17,000 | |
4/5/2014 | $17,000 |
Past listing photos
Sign in to take a closer look at how this home compares to similar homes.
Explore Park Slope
Transit
| Location | Distance |
|---|---|
Rat Union St | 0.32 miles |
Fat 7th Av | 0.37 miles |
FGRat 9th St | 0.37 miles |
Fat 4th Av | 0.41 miles |
BQat 7th Av | 0.59 miles |
About Park Slope
Rental prices shown are base rent before any fees. Visit listings for cost and fees breakdown.
SalesMedian asking price
6 beds
$3.5M
Park Slope has a tranquil, easygoing vibe and can almost feel suburban. Strollers and children of all ages are a constant presence on sidewalks, as are shoppers patronizing local boutiques and dog walkers heading up to the park. Residents are Brooklynites through and through and tend to be socially conscious, artistically minded, and committed to their community. At night, a casual restaurant scene comes alive. For anyone looking for a night out, there are plenty of beer gardens and wine bars to patronize, especially in the South Slope, but don't go looking for dance clubs.
Learn more about Park SlopeSimilar homes
Prices shown are base rent only and don't include any fees. Visit each listing to see a complete cost breakdown.
Similar Homes looks at ad spend and other factors like location, price, and number of beds and baths.





















































































































































































