$9,995
For Rent
Base rent only. For total monthly price and additional fees, see .
No longer available 5/20/2024
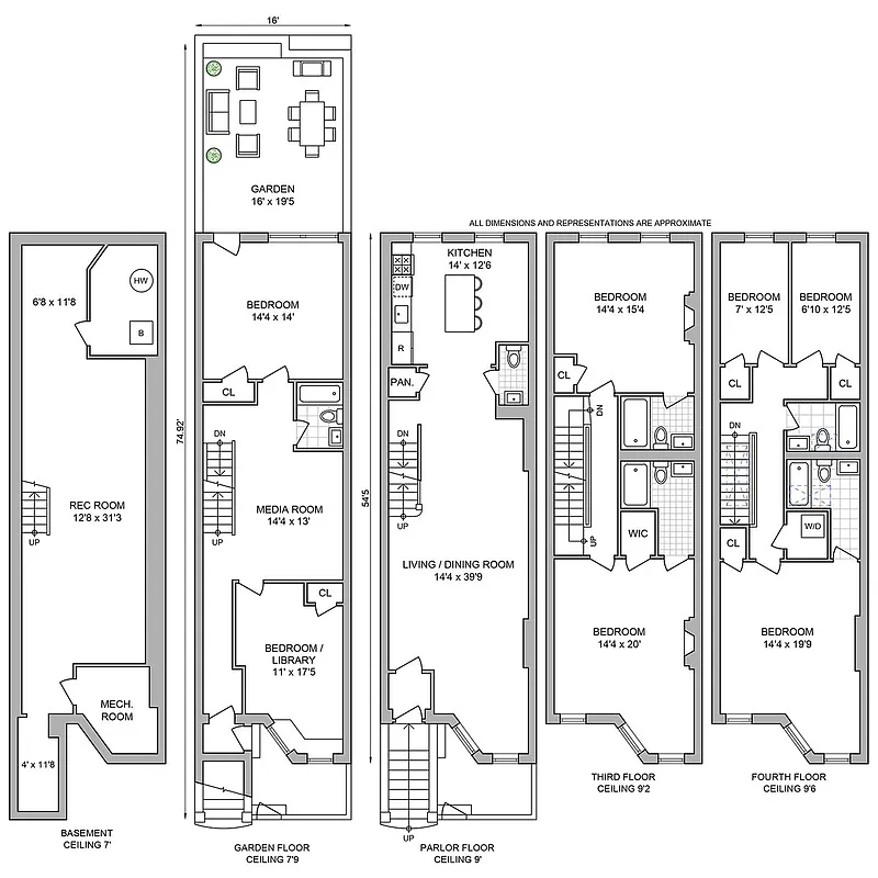
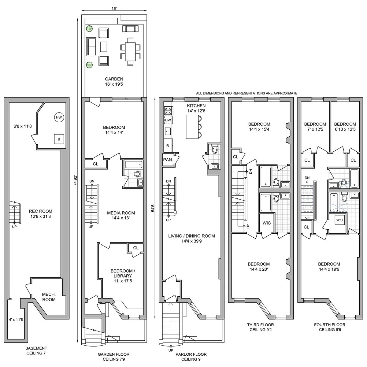
3,520 ft²
$34 per ft²
15 rooms
5 beds
5.5 baths
Two-family home
- Hamilton Heights
Under NYC law, you can't be charged a broker fee if you didn't hire a broker.
Listed By
This home has been saved by 51 users.
Listing by REAL New York, Limited Liability Broker, 222 Broadway, New York, NY 10038
Unavailable
No longer available on 5/20/2024
Days on market
109 days
Last price change
↓ $505 (-4.8%) on 2/8/24
About
Your Dream Townhouse in Hamilton Heights Awaits
**3500+ Sqft Spread Out Over 5 Levels. Truly a One of a Kind Home**
**Main Level:**
Upon entry you'll be greeted by a seamless integration of Original Victorian details, coupled with New High-End Kitchen finishes. The Living Area includes a Deco Fireplace, Wood Trim detailing, and Oversized Windows. The Separate Kitchen incudes a Bertazzoni Range, Double Door GE Fridge, and Carrera White Marble Island.
Policies
Sorry, policy info isn’t available right now. Check back later.
Home features
Central air
Dishwasher
Fireplace
Decorative
Hardwood floors
Private outdoor space
Garden, Terrace
View
City, Garden
Washer/dryer
Building amenities
Sorry, building amenities aren't available right now. Check back later.
About the building
401 West 147th Street
401 West 147th Street, New York, NY 10031
2 units
3 stories
1901 built
For rent
0 available units for rentProperty history
Prices shown are base rent only. For total monthly price and additional fees, see .
| Date | Base rent | Event |
|---|---|---|
5/20/2024 | $9,995 | No longer available |
2/8/2024 | $9,995 | Price decreased by 5% |
2/1/2024 | $10,500 | Listed by REAL New York |
Sign in to take a closer look at how this home compares to similar homes.
Explore Hamilton Heights
Transit
| Location | Distance |
|---|---|
ABCDat 145th St | under 500 feet |
1at 145th St | 0.33 miles |
Cat 155th St | 0.38 miles |
3at Harlem–148th St | 0.38 miles |
BDat 155th St | 0.5 miles |
Similar homes
Prices shown are base rent only and don't include any fees. Visit each listing to see a complete cost breakdown.
Similar Homes looks at ad spend and other factors like location, price, and number of beds and baths.

























































































































































