$819,000
for sale
No longer available 1/14/2021
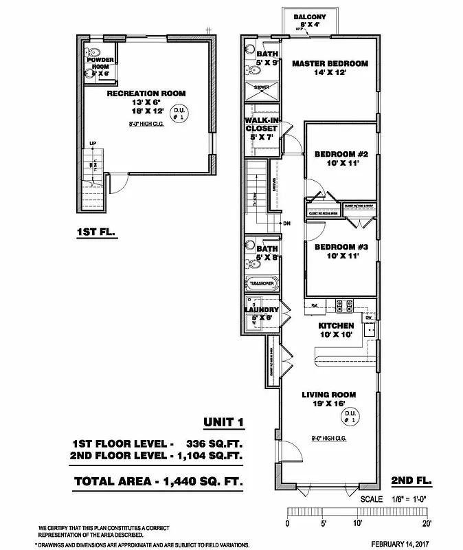
1,440 ft²
$568 per ft²
5 rooms
3 beds
2.5 baths
House
- The Heights
Seller's agent
PRIME Real Estate Group
This home has been saved by 2 users.
Listing by PRIME Real Estate Group
Common charges
Not applicable
Estimated payment
$4,400/mo
Taxes
No info
Tax abatement
No info
About
Seller’s agent
Description
New construction 2 unit condo located on desirable Ogden Avenue, walking distance to Congress Street Light Rail Station. This 3 bedroom/2.5 bath duplex home includes a family room, 1 car garage spot (tandem), and private backyard. The kitchen will come equipped with stainless steel appliances, granite or quartz counters, high-end cabinets, and wine cooler. Other features include in-unit washer/dryer & wood floors throughout.
Policies
Sorry, policy info isn’t available right now. Check back later.
Home features
Central air
Dishwasher
Private outdoor space
Garden
Washer/dryer
Building amenities
Services and facilities
Parking
Wellness and recreation
No info on wellness and recreation
Shared outdoor space
Courtyard
About the building
417 Ogden Avenue
417 Ogden Avenue, Jersey City, NJ 07307
- units
- stories
- built
Property history
- Price Change: ↑ $30,000 (+3.8%) on 2/22/17
- Days on market: 31 days
| Date | Price | Event |
|---|---|---|
1/14/2021 | $819,000 | No longer available |
3/20/2017 | $819,000 | In contract |
2/22/2017 | $819,000 | Price increased by 4% |
2/17/2017 | $789,000 | Listed by PRIME Real Estate Group |
Sign in to take a closer look at how this home compares to similar homes.
Explore The Heights
Transit
| Location | Distance |
|---|---|
HBLRat 9th Street/Congress St | 0.16 miles |
HBLRat 2nd Street | 0.5 miles |
HBLRPATHat Hoboken Terminal | 1.13 miles |
HBLRat Lincoln Harbor | 1.3 miles |
PATHat Pavonia/Newport Station | 1.5 miles |





























































































































































