3,240 ft²
$321 per ft²
2 rooms
Studio
0 baths
Two-family home
- Clinton Hill
recorded sale
Sold on 4/22/2009
Verified by closing records
Last listed for $1,225,000
Seller's agents
Kevin Landers
Douglas Elliman
This home has been saved by 3 users.
Listing by Douglas Elliman, Limited Liability Broker | MLS #: 158840
Common charges
Not applicable
Estimated payment
$6,275/mo
Legal disclaimerAll calculations are estimates provided by StreetEasy for informational purposes only. Actual amounts or financing terms may vary. Please contact your mortgage provider for specifics.Taxes
No info
Tax abatement
No info
About
Seller’s agent
description
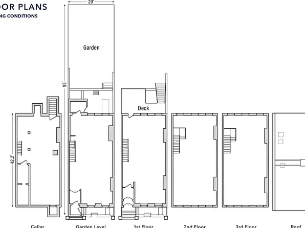
Handsome Four Story 18’ Brownstone, filled with original detail and character. An opportunity for someone to restore this historic home. Located in peaceful Clinton Hill, potential to create magnificent 5 Bedroom family home or possibilities for income.
Policies
Sorry, policy info isn’t available right now. Check back later.
Home features
No info on home features
Building amenities
No info on building amenities
About the building
42 Downing Street
42 Downing Street, Brooklyn, NY 11238
2 units
2 stories
1905 built
For sale
0 available units for saleFor rent
0 available units for rentDocuments and permits
View documents and permitsProperty history
- Price Change: ↓ $100,000 (-7.5%) on 1/8/09
- Days on market: 218 daysThis is the number of days the listing has been on StreetEasy.
| Date | Price | Event |
|---|---|---|
4/22/2009 | $1,042,500 | Sold by Douglas Elliman |
4/23/2009 | $1,225,000 | No longer available |
2/10/2009 | $1,225,000 | In contract |
1/8/2009 | $1,225,000 | Price decreased by 8% |
10/10/2008 | $1,325,000 | Price decreased by 7% |
Past listing photos
Sign in to take a closer look at how this home compares to similar homes.
Explore Clinton Hill
Transit
| Location | Distance |
|---|---|
Cat Clinton & Washington Avs | 0.2 miles |
Gat Classon Av | 0.3 miles |
Gat Clinton–Washington Avs | 0.34 miles |
ASat Franklin Av | 0.37 miles |
ACSat Franklin Av | 0.37 miles |









































































