$10,900
For Rent
Base rent only. For total monthly price and additional fees, see .
Rented 6/8/2023
- ft²
10 rooms
4 beds
3 baths
Two-family home
- Windsor Terrace
Under NYC law, you can't be charged a broker fee if you didn't hire a broker.
Listed By
Amicourt LLC
This home has been saved by 4 users.
Listing by Amicourt LLC
Unavailable
Rented on 6/8/2023
Days on market
10 days
Last price change
No changes
About
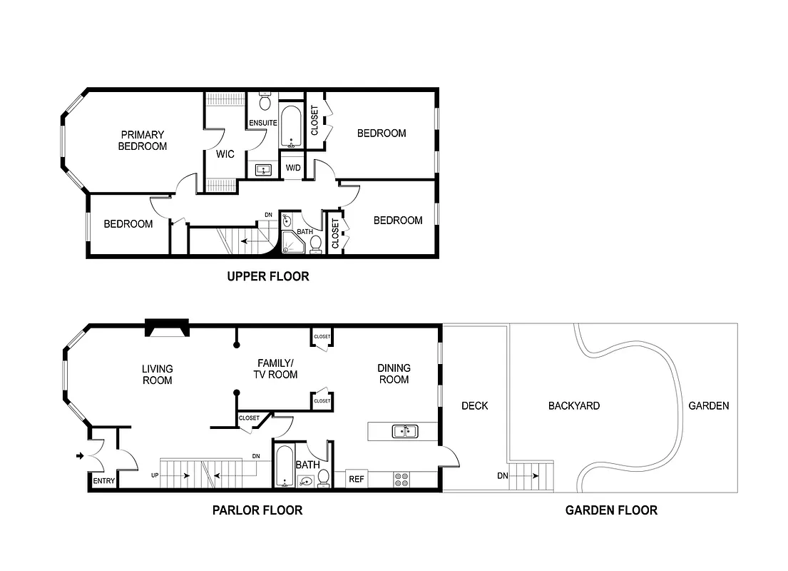
Rare 4-Bedroom 3-bath parlor duplex with backyard and deck in Prime Windsor Terrace
Modern comfort with old-world limestone charm! Spacious duplex apartment in a classic 2-family limestone townhouse on very quiet, tree-lined block in prime Windsor Terrace. With 10-foot ceiling, over-sized windows in the front and back of the parlor floor and an open kitchen with stainless steel appliances and quartz countertops, this apartment offers an abundance of space, natural light, and air flow.
Policies
Sorry, policy info isn’t available right now. Check back later.
Home features
Central air
Dishwasher
Fireplace
Decorative
Hardwood floors
Private outdoor space
Garden, Terrace
View
Garden
Washer/dryer
Building amenities
No info on building amenities
About the building
42 Sherman Street
42 Sherman Street, Brooklyn, NY 11215
2 units
2 stories
1901 built
Property history
Prices shown are base rent only. For total monthly price and additional fees, see .
| Date | Base rent | Event |
|---|---|---|
6/8/2023 | $10,900 | Rented by Amicourt LLC |
5/29/2023 | $10,900 | Listed by Amicourt LLC |
10/9/2017 | $5,850 | |
9/27/2017 | $5,850 | |
9/17/2017 | $6,300 |
Past listing photos
Sign in to take a closer look at how this home compares to similar homes.
Explore Windsor Terrace
Transit
| Location | Distance |
|---|---|
Fat Prospect Park–15 St | 0.19 miles |
Fat Fort Hamilton Parkway | 0.33 miles |
Fat 7th Av | 0.58 miles |
Fat Church Av | 0.84 miles |
BQSat Prospect Park | 0.86 miles |
Similar homes
Prices shown are base rent only and don't include any fees. Visit each listing to see a complete cost breakdown.
Similar Homes looks at ad spend and other factors like location, price, and number of beds and baths.

















































































































