View this home virtually
$3,650
for rent
Base rent only. For total monthly price and additional fees, see .
Rented 4/13/2021
817 ft²
$53 per ft²
3 rooms
1 bed
1 bath
Condo
- Midtown South
Under NYC law, you can't be charged a broker fee if you didn't hire a broker.
Listed by
This home has been saved by 111 users.
Listing by Rossi Living, Limited Liability Broker, 575 Lexington Avenue,, New York, NY 10022
Unavailable
Rented on 4/13/2021
Days on market
88 days
Last price change
No changes
About
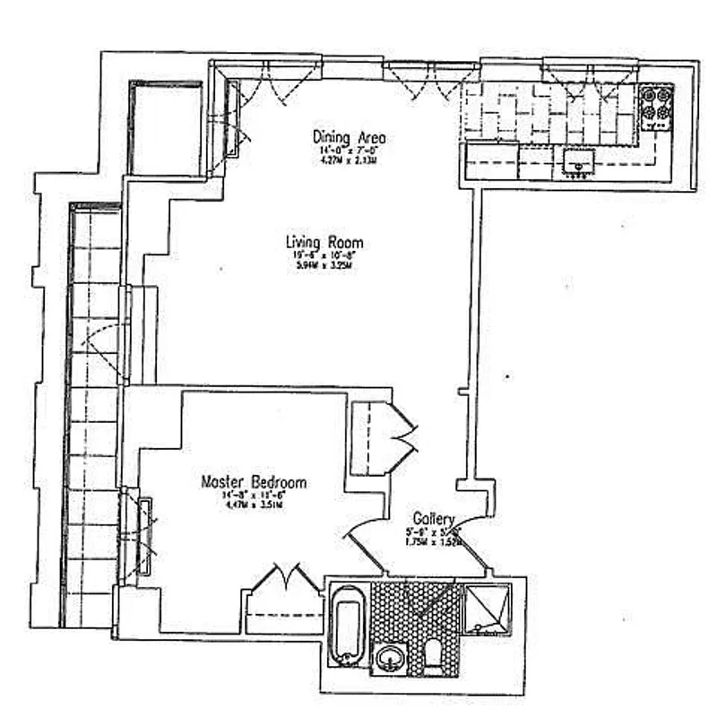
On the 28th floor of 425 Fifth Avenue, a full service condominium with 24 hour doorman and concierge designed by Michael Graves, this beautifully planned apartment with private balcony is now for rent. This bright one-bedroom apartment has wonderful city views (North and West) and a very functional layout, with a spacious living room and a dining area.
Policies
Sorry, policy info isn’t available right now. Check back later.
Home features
Central air
Dishwasher
Private outdoor space
Balcony
View
City, Skyline
Building amenities
Services and facilities
Concierge
Doorman
Full-time
Elevator
Laundry in building
Live-in super
Storage space
Wellness and recreation
Children's playroom
Gym
Media room
Swimming pool
Shared outdoor space
Roof deck
About the building
425 5th Avenue
425 5th Avenue, New York, NY 10016
172 units
54 stories
2003 built
Property history
Prices shown are base rent only. For total monthly price and additional fees, see .
| Date | Base rent | Event |
|---|---|---|
4/13/2021 | $3,650 | Rented by Rossi Living |
4/12/2021 | $3,650 | In contract |
1/14/2021 | $3,650 | Listed by Rossi Living |
7/16/2017 | $3,995 | |
7/6/2017 | $3,995 |
Past listing photos
Sign in to take a closer look at how this home compares to similar homes.
Explore Midtown South
Transit
| Location | Distance |
|---|---|
BDFM7at 5th Av | 0.18 miles |
S4567at Grand Central–42nd St | 0.21 miles |
BDFM7at 42nd St | 0.22 miles |
BDFMNQRWat 34th St–Herald Sq | 0.25 miles |
6at 33rd St | 0.3 miles |
Similar homes
Prices shown are base rent only and don't include any fees. Visit each listing to see a complete cost breakdown.
Similar Homes looks at ad spend and other factors like location, price, and number of beds and baths.


















































































