$5,795
for rent
Base rent only. For total monthly price and additional fees, see .
Rented 4/21/2026
980 ft²
$70 per ft²
1 room
1 bed
1.5 baths
Condo
- Midtown South
Under NYC law, you can't be charged a broker fee if you didn't hire a broker.
Listed by
This home has been saved by 53 users.
Listing by R New York, Limited Liability Broker, 641 Lexington Avenue, New York, NY 10022
Unavailable
Rented on 4/21/2026
Days on market
40 days
Last price change
↓ $200 (-3.3%) on 4/1/26
About
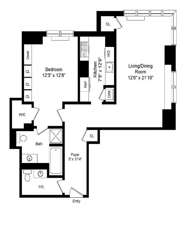
Rarely available 1000sq ft 1BR/1.5BA corner one bed one and half bath at 425 Fifth Avenue! The apartment features a tremendous amount of light with it’s S/W corner exposure, in addition, a state-of-the-art separate kitchen with stainless steel appliances, that includes a sub zero refrigerator and Miele stove gas range, enjoy a spacious bathroom with a separate soaking tub & standing a separate jet...
Policies
Sorry, policy info isn’t available right now. Check back later.
Home features
Central air
Dishwasher
Hardwood floors
View
City, Skyline
Washer/dryer
Building amenities
Services and facilities
Bike room
Doorman
Full-time
Elevator
Live-in super
Package room
Storage space
Wellness and recreation
Children's playroom
Gym
Swimming pool
Shared outdoor space
Roof deck
About the building
425 5th Avenue
425 5th Avenue, New York, NY 10016
172 units
54 stories
2003 built
Property history
Prices shown are base rent only. For total monthly price and additional fees, see .
| Date | Base rent | Event |
|---|---|---|
4/21/2026 | $5,795 | Rented by R New York |
4/6/2026 | $5,795 | In contract |
4/1/2026 | $5,795 | Price decreased by 3% |
2/25/2026 | $5,995 | Listed by R New York |
2/2/2024 | $5,250 |
Past listing photos
Sign in to take a closer look at how this home compares to similar homes.
Explore Midtown South
Transit
| Location | Distance |
|---|---|
BDFM7at 5th Av | 0.18 miles |
S4567at Grand Central–42nd St | 0.21 miles |
BDFM7at 42nd St | 0.22 miles |
BDFMNQRWat 34th St–Herald Sq | 0.25 miles |
6at 33rd St | 0.3 miles |
Similar homes
Prices shown are base rent only and don't include any fees. Visit each listing to see a complete cost breakdown.
Similar Homes looks at ad spend and other factors like location, price, and number of beds and baths.













































































































